3-комнатная — 82,5 м² 13/20 эт. в Smartpolét (Смартполёт, Полет)
О квартире
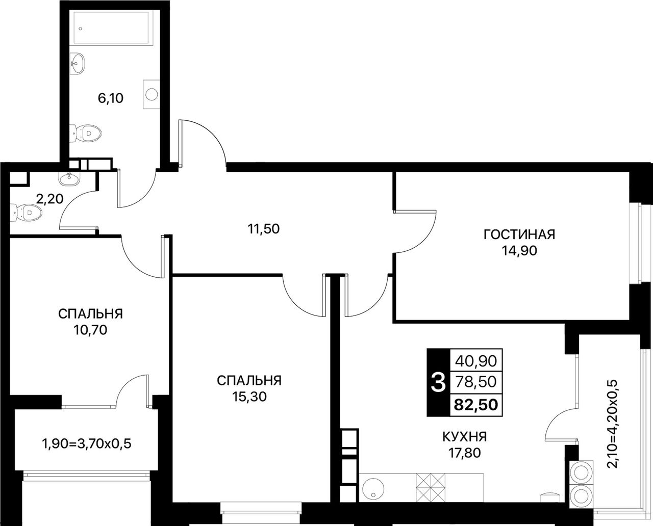
Комнат3
Общая площадь82,5 м²
Жилая площадь40,9 м²
Кухня17,8 м²
Этаж13 из 20
Номер квартиры№92
ОтделкаБез отделки
Санузел2 совмещ.
- Последние дома умного квартала;
- Первая парковая линия
- Собственный выход в новый большой парк;
- Региональный спортивно-тренировочный центр по единоборствам и игровым видам спорта и детский сад у дома;
- Второй детский сад (уже построенный) и большая школа в шаговой доступности;
- Квартиры с видом на парк;
- Последняя возможность стать одним из обладателей квартиры в первом квартале на легендарной территории;
- Удобный выезд на ул. Берберовскую;
- Концепция «Двор без машин»;
- Холлы с дизайнерской отделкой;
- Чистовая отделка — экономьте время и деньги на ремонте;
- Квартиры 4D: ремонт, мебель и техника;
- Индивидуальное отопление — регулируйте температуру в квартире;
- Подземный паркинг;
- Возможность спуститься в паркинг на бесшумном лифте со своего этажа;
- Высокая цифровизация жизни;
- Концепция «умного дома» с технологической инфраструктурой.
Динамика цены
Изменялась от 9 611 250 до 11 653 125 ₽За последние 6 месяцев цена снизилась на 542 437 ₽
О доме
- КорпусЛитер 1 Корпус 1
- Срок сдачи3 кв. 2029 г.
- Количество этажей20
- КлассКомфорт+
- Тип домаМонолит-кирпич
Доступные варианты отделки
С ремонтом
White BoxОтправляя заявку, вы даёте своё согласие на обработку персональных данных
О проекте ЖК «Smartpolét (Смартполёт, Полет)»

- Застройщик
- Кол-во корпусов17 корпусов
- Сроки сдачи2028-2029
- КлассКомфорт+
- Тип домаМонолит-кирпич
- ПарковкаПодземная
ЖК «Smartpolét» (Смартполёт) в Ростове-на-Дону от «ЮгСтройИнвест» - умный квартал, реализованный в рамках проекта комплексного развития территории в районе старого Аэропорта.
Подробнее о ЖКОсобенности проекта
Детский сад
Школа
Спорткомплекс
Паркинг с доступом на лифте
Новая история
Архитектура
Инфраструктура
Внутренний двор
Парк и сквер
Зоны отдыха
Детские площадки
Спортивные площадки
Wi-Fi на всей территории
Закрытая охраняемая территорияРасположение
Ростов-на-Дону, Берберовская улицаНа территории ЖК:
- Детский сад
Ипотека
Стоимость квартиры
10 308 375 ₽
Первоначальный взнос
20%
Срок
Семейная ипотека 3,5%Для семей с ребёнком до 6 лет или семей с ребёнком-инвалидом
От застройщикаЮгСтройИнвест (ЮСИ)
36 985 ₽/мес3,5%
Семейная ипотека 6%Льготная ипотека для семей с детьми
49 381 ₽/мес6%
Базовая программаБез требований к семейному положению и наличию детей
200 454 ₽/мес29,2%
Другие способы покупки
- 202дома строится
в 202 ЖК - 416домов сдано
в 416 ЖК
Отправляя заявку, вы даёте своё согласие на обработку персональных данных
Другие ЖК застройщика ЮгСтройИнвест (ЮСИ)
Смотреть все ЖК застройщика- Сдача: 2 кв. 2029 г.
| 1-комн. | 31 - 46 м² | 4,6 - 8,2 млн ₽ |
| 2-комн. | 50 - 68 м² | 7,3 - 8,4 млн ₽ |
| 3-комн. | 70 - 90 м² | 8,8 - 11,3 млн ₽ |
В ипотеку от 19 379 ₽/мес
Новый масштабный проект от «ЮгСтройИнвест» на территории Нового Ростова. В проекте школа, детский сад, благоустроенные аллеи для прогулок и ...
- Сдача: 4 кв. 2028 г.
- Есть сданные
| 1-комн. | 32 - 43 м² | 4,9 - 9 млн ₽ |
| 2-комн. | 51 - 59 м² | 7,3 - 8,1 млн ₽ |
| 3-комн. | 70 - 86 м² | 8,9 - 10,8 млн ₽ |
В ипотеку от 20 582 ₽/мес
Второй этап масштабного проекта «Новый Ростов» на легендарной территории Старого аэропорта.
- Сдача: 1 кв. 2027 г.
- Есть сданные
| 1-комн. | 37 - 54 м² | 7,6 - 10 млн ₽ |
| 2-комн. | 60 - 70 м² | 9,7 - 11,5 млн ₽ |
| 3-комн. | 69 - 93 м² | 11,2 - 16,7 млн ₽ |
| 4+ комн. | 135 - 178 м² | цена по телефону |
В ипотеку от 31 919 ₽/мес
Жилой комплекс бизнес-класса с одним из лучших видов на город и природную красоту! Собственный парк 14 га, два детских сада, школа, поликлин...
- Сдача: 2 кв. 2028 г.
- Есть сданные
| 1-комн. | 32 м² | 7,4 млн ₽ |
| 2-комн. | 61 - 64 м² | 8 - 8,5 млн ₽ |
| 3-комн. | 83 м² | 10,3 - 10,4 млн ₽ |
В ипотеку от 23 162 ₽/мес
ЖК «Smartpolét» (Смартполёт) в Ростове-на-Дону от «ЮгСтройИнвест» - умный квартал, реализованный в рамках проекта комплексного развития терр...
- Сдан: 2 кв. 2025 г.
| 1-комн. | 60 м² | 7,3 млн ₽ |
| 2-комн. | 38 - 75 м² | цена по телефону |
| 3-комн. | 68 - 81 м² | цена по телефону |
В ипотеку от 30 622 ₽/мес
ЖК «61 квартал» в Ростове - масштабный проект застройки на участке 11 га в престижном районе города. Свой детский сад, школа, подземные парк...









