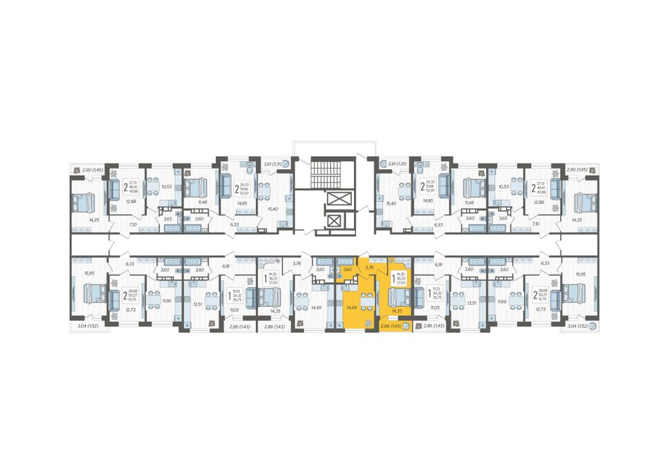
1-комнатная — 37,65 м² 11/12 эт. в Смородина
О квартире
Комнат1
Общая площадь37,65 м²
Жилая площадь14,35 м²
Кухня14,49 м²
Этаж11 из 12
ОтделкаБез отделки
Санузел1 совмещ.
Балкон/Лоджия1 лоджия
ЖК "Смородина" - это семейный квартал из десяти шестнадцатиэтажных домов класса комфорт с просторными парковками, торговыми галереями и пунктами бытового обслуживания на первых этажах, безбарьерным доступом для мам с малышами и маломобильных граждан. В каждом подъезде - места для хранения велосипедов и колясок, бесшумные лифты, видеонаблюдение. Все коммуникации центральные. Во дворах современные детские и спортивные площадки.
Динамика цены
Изменялась от 5 722 800 до 5 811 278 ₽О доме
- КорпусЛитер 18
- Срок сдачи2 кв. 2028 г.
- Количество этажей12
- КлассКомфорт
- Тип домаМонолит-кирпич
Доступные варианты отделки
С отделкой
Предчистовая
Без отделкиОтправляя заявку, вы даёте своё согласие на обработку персональных данных
О проекте ЖК «Смородина»

- Застройщик
- Кол-во корпусов19 корпусов
- Сроки сдачи2026-2028
- КлассКомфорт
- Тип домаМонолит-кирпич
- ПарковкаНаземная
Яркие фасады в ягодном стиле, собственная торговая галерея на территории, бесплатный школьный автобус для учеников, красивое ландшафтное озеленение территории - все это ЖК «Смородина»!
Подробнее о ЖКОсобенности проекта
Экологичный район
Благоустроенная территория
Уникальное озеленение
Стильные места общего пользования
Коммерческие помещения на 1 этажах
БезопасностьРасположение
Краснодар, улица имени Владимира ЖириновскогоИпотека
Стоимость квартиры
5 839 515 ₽
Первоначальный взнос
20%
Срок
Семейная ипотека 6%Льготная ипотека для семей с детьми
27 974 ₽/мес6%
Базовая программаБез требований к семейному положению и наличию детей
113 554 ₽/мес29,2%
Другие способы покупки
- 23дома строится
в 23 ЖК - 210домов сдано
в 210 ЖК
Отправляя заявку, вы даёте своё согласие на обработку персональных данных
Другие ЖК застройщика AVA Group
Смотреть все ЖК застройщика- Сдача: 1 кв. 2026 г.
- Есть сданные
| 1-комн. | 30 - 42 м² | цена по телефону |
| 2-комн. | 60 - 68 м² | 8,4 - 9,6 млн ₽ |
| 3-комн. | 80 - 85 м² | 11 - 11,6 млн ₽ |
В ипотеку от 35 083 ₽/мес
Фасады благородных оттенков, европейский стиль в дизайне, три паркинга, детский садик во дворе, удобная локация неподалеку от центра Краснод...
- Сдан: 4 кв. 2024 г.
| 1-комн. | 51 м² | 6,4 млн ₽ |
| 2-комн. | 58 - 67 м² | 6,8 - 8,2 млн ₽ |
| 3-комн. | 86 - 111 м² | 10 - 13,2 млн ₽ |
В ипотеку от 26 697 ₽/мес
Квартиры комфорт-класса в экологически чистом районе Краснодара! Стильные фасады, школа, детский садик и многоуровневый паркинг во дворе.
- Сдан: 1 кв. 2025 г.
| Студия | 23 - 28 м² | цена по телефону |
| 1-комн. | 37 - 47 м² | 6,9 - 8,2 млн ₽ |
| 2-комн. | 61 м² | 8,6 - 8,7 млн ₽ |
| 3-комн. | 78 - 79 м² | 9,6 - 10,3 млн ₽ |
В ипотеку от 29 124 ₽/мес
Стильный фасад, большой наземно-подземный паркинг, детский сад и фитнес центр на территории ЖК. Детские и спортивные площадки на стилобате, ...
- Сдача: 1 кв. 2026 г.
- Есть сданные
| 1-комн. | 40 - 58 м² | 7,2 - 8,1 млн ₽ |
| 2-комн. | 60 - 450 м² | 8 - 59,9 млн ₽ |
| 3-комн. | 92 - 111 м² | 12,6 - 16,4 млн ₽ |
В ипотеку от 30 364 ₽/мес
Яркие фасады с благоустроенной территорией, детские и спортивные площадки на стилобате, трехуровневый подземный паркинг и апарт-отель на тер...
| 2-комн. | 72 м² | 14,5 млн ₽ |
В ипотеку от 60 830 ₽/мес
- Сдача: 1 кв. 2026 г.
- Есть сданные
| 1-комн. | 33 - 38 м² | 4,8 - 6,2 млн ₽ |
| 2-комн. | 50 - 60 м² | 6,3 - 7,7 млн ₽ |
| 3-комн. | 68 - 74 м² | 7,8 - 9 млн ₽ |
В ипотеку от 19 982 ₽/мес
Яркие фасады в ягодном стиле, собственная торговая галерея на территории, бесплатный школьный автобус для учеников, красивое ландшафтное озе...


























