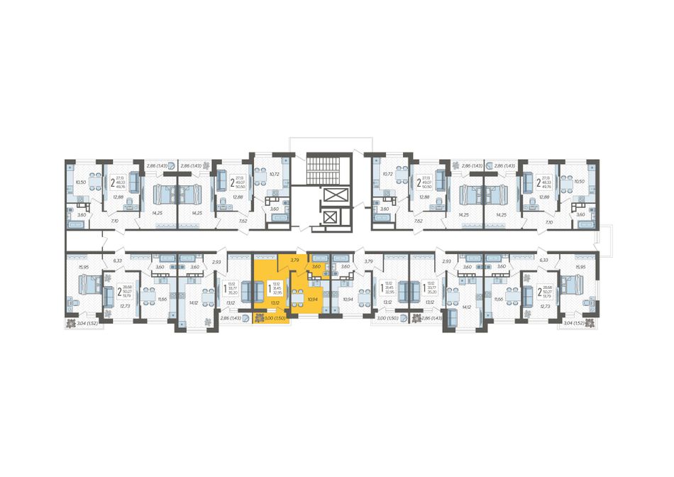
1-комнатная — 32,95 м² 10/16 эт. в Смородина
О квартире
Комнат1
Общая площадь32,95 м²
Жилая площадь13,12 м²
Кухня10,94 м²
Этаж10 из 16
ОтделкаБез отделки
Санузел1 совмещ.
Балкон/Лоджия1 лоджия
Продаётся 1-комнатная квартира №96 в ЖК «Смородина» (Корпус 20, Секция 1), на 10 этаже 16-этажного дома, срок сдачи: 2 кв. 2028, общей площадью 32,95 кв. м. Без отделки.
ЖК "Смородина" - это семейный квартал из десяти шестнадцатиэтажных домов класса комфорт с просторными парковками, торговыми галереями и пунктами бытового обслуживания на первых этажах, безбарьерным доступом для мам с малышами и маломобильных граждан. В каждом подъезде - места для хранения велосипедов и колясок, бесшумные лифты, видеонаблюдение. Все коммуникации центральные. Во дворах современные детские и спортивные площадки.
Динамика цены
Изменялась от 4 909 550 до 5 061 120 ₽За последние 6 месяцев цена снизилась на 16 475 ₽
О доме
- КорпусЛитер 20
- Срок сдачи2 кв. 2028 г.
- Количество этажей16
- КлассКомфорт
- Тип домаМонолит-кирпич
Доступные варианты отделки
С отделкой
Предчистовая
Без отделкиОтправляя заявку, вы даёте своё согласие на обработку персональных данных
О проекте ЖК «Смородина»

- Застройщик
- Кол-во корпусов19 корпусов
- Сроки сдачи2026-2028
- КлассКомфорт
- Тип домаМонолит-кирпич
- ПарковкаНаземная
Яркие фасады в ягодном стиле, собственная торговая галерея на территории, бесплатный школьный автобус для учеников, красивое ландшафтное озеленение территории - все это ЖК «Смородина»!
Подробнее о ЖКОсобенности проекта
Экологичный район
Благоустроенная территория
Уникальное озеленение
Стильные места общего пользования
Коммерческие помещения на 1 этажах
БезопасностьРасположение
Краснодар, улица имени Владимира ЖириновскогоИпотека
Стоимость квартиры
4 942 500 ₽
Первоначальный взнос
20%
Срок
Семейная ипотека 6%Льготная ипотека для семей с детьми
23 677 ₽/мес6%
Базовая программаБез требований к семейному положению и наличию детей
96 110 ₽/мес29,2%
Другие способы покупки
- 26домов строится
в 26 ЖК - 216домов сдано
в 216 ЖК
Отправляя заявку, вы даёте своё согласие на обработку персональных данных
Другие ЖК застройщика AVA Group
Смотреть все ЖК застройщика- Сдача: 4 кв. 2026 г.
- Есть сданные
| 1-комн. | 33 - 38 м² | 4,9 - 6 млн ₽ |
| 2-комн. | 50 - 60 м² | 6,3 - 7,6 млн ₽ |
| 3-комн. | 68 - 74 м² | 8,2 - 8,9 млн ₽ |
В ипотеку от 20 743 ₽/мес
Яркие фасады в ягодном стиле, собственная торговая галерея на территории, бесплатный школьный автобус для учеников, красивое ландшафтное озе...
- Сдача: 2 кв. 2026 г.
- Есть сданные
| 1-комн. | 40 - 58 м² | 7,2 - 8,2 млн ₽ |
| 2-комн. | 60 - 450 м² | 8,1 - 60,8 млн ₽ |
| 3-комн. | 92 - 111 м² | 12,8 - 16,6 млн ₽ |
В ипотеку от 30 364 ₽/мес
Яркие фасады с благоустроенной территорией, детские и спортивные площадки на стилобате, трехуровневый подземный паркинг и апарт-отель на тер...
- Сдача: 1 кв. 2026 г.
- Есть сданные
| 1-комн. | 30 - 42 м² | цена по телефону |
| 2-комн. | 61 - 68 м² | 8,7 - 9,6 млн ₽ |
| 3-комн. | 85 м² | 11,6 - 11,6 млн ₽ |
В ипотеку от 36 435 ₽/мес
Фасады благородных оттенков, европейский стиль в дизайне, три паркинга, детский садик во дворе, удобная локация неподалеку от центра Краснод...
- Сдан: 1 кв. 2025 г.
| Студия | 23 - 28 м² | цена по телефону |
| 1-комн. | 37 - 47 м² | 6,4 - 8,3 млн ₽ |
| 2-комн. | 61 м² | 8,7 - 8,8 млн ₽ |
| 3-комн. | 78 - 79 м² | 8,8 - 9 млн ₽ |
В ипотеку от 26 791 ₽/мес
Стильный фасад, большой наземно-подземный паркинг, детский сад и фитнес центр на территории ЖК. Детские и спортивные площадки на стилобате, ...
| 2-комн. | 72 м² | 14,5 млн ₽ |
В ипотеку от 60 830 ₽/мес

























