3-комнатная — 90,1 м² 12/12 эт. в Сияние
О квартире
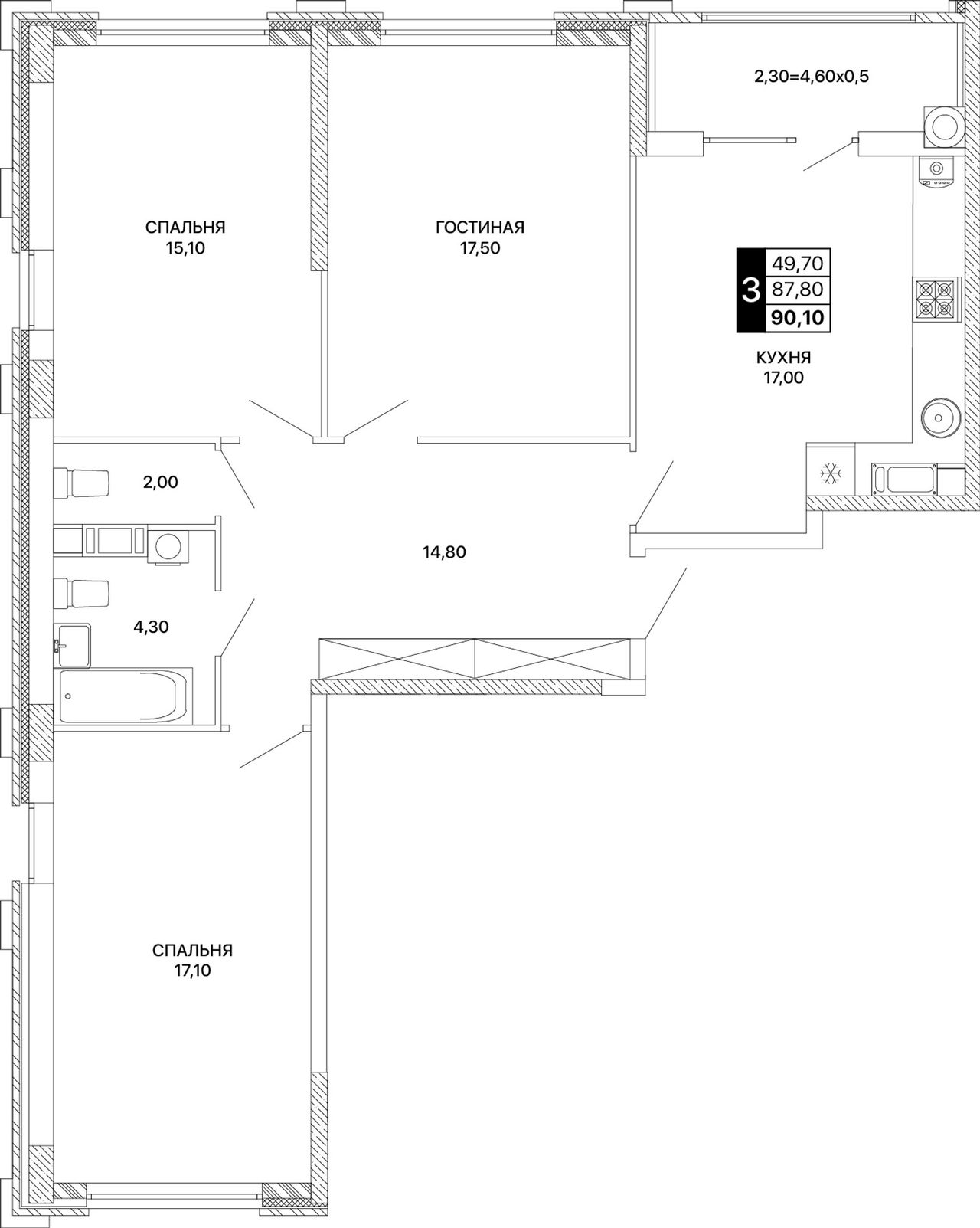
Комнат3
Общая площадь90,1 м²
Жилая площадь49,7 м²
Кухня17 м²
Этаж12 из 12
Номер квартиры№172
ОтделкаБез отделки
Санузел2 совмещ.
ДОМ В СЕРДЦЕ КВАРТАЛА
Новый кластер — сердце «Сияния». До всех объектов квартала на Шолохова будет не больше нескольких минут.
Расположение кластера на первой парковой линии подарит уникальную возможность каждый день выходить на приятные прогулки. Территория парка будет насыщена инфраструктурой, в том числе современными спортивными и детскими площадками, прогулочными зонами и локациями для общественных мероприятий.
САМЫЙ СЕМЕЙНЫЙ
18 кластер идеально подойдет для семьям с детьми. В шаговой доступности все, что может понадобится для комфортной жизни. Прямо у дома — образовательный кластер квартала. Он состоит из большой новой школы на 900 учеников и детского сада на 200 мест. Через дорогу — новый парк с насыщенной инфраструктурой. Традиционно, социальные объекты возводятся одновременно с домами, чтобы они заработали уже для первых жителей квартала.
А для эффективных тренировок вокруг будет сразу несколько локаций: спортивная зона во дворе кластера, площадки с безопасным покрытием в парке и большой спортивный комплекс с современным оборудованием на расстоянии 5-минутной прогулки.
УДОБНАЯ ЛОКАЦИЯ
Квартал будет расположен в Новом центре города на территории старого аэропорта города, на одной из ключевых автомобильных артерий города - проспекте Шолохова.
Максимальное насыщение инфраструктурой! По городскому проекту тут запланировано строительство объектов культуры, спорта, здравоохранения и образования, возведут здания Правительственного квартала.
В транспортной доступности — ТЦ «МЕГА», ЖД Вокзал и Аэропорт «Платов».
КВАРТИРЫ С ИНДИВИДУАЛЬНОСТЬЮ
Квартиры в квартале на Шолохова «Сияние» отражают индивидуальность своих жителей. Это место, с которым почувствуете особую связь
Для выбора «Сияние» представит большой выбор планировок: от уютных 1-комнатных и до просторных «трешек».
Квартиры сдаются в предчистовой отделке white box. Выполнена электроразводка и разводка труб. Стены и пол готовы к началу ремонта. Благодаря французским окнам в квартире всегда будет обилие естественного света.
Для тех, кто умеет дело профессионалам будут доступны квартиры с ремонтом от застройщика. На выбор - один из трех дизайн-проектов. Готовность ремонта - через 60 дней после сдачи. Гарантия качества - 1 год.
Выбирайте способ, который подходит вам. Дополнительную информацию вы можете получить у своего личного менеджера отдела продаж ГК «ЮгСтройИнвест».
О доме
- КорпусЛитер 15/2
- Срок сдачи2 кв. 2032 г.
- Количество этажей12
- КлассКомфорт
- Тип домаМонолит-кирпич
Доступные варианты отделки
С ремонтом
White BoxОтправляя заявку, вы даёте своё согласие на обработку персональных данных
О проекте ЖК «Сияние»

- Застройщик
- Кол-во корпусов17 корпусов
- Сроки сдачи2028-2032
- КлассКомфорт+
- Тип домаМонолит-кирпич
- ПарковкаПодземная
Второй этап масштабного проекта «Новый Ростов» на легендарной территории Старого аэропорта.
Подробнее о ЖКОсобенности проекта
Уникальный парк
Впечатляющая архитектура
Детский сад
Собственная школа
Торговая галерея
Место силы и спокойствия
Зонирование двора
Подземный паркинг
Индивидуальное отоплениеРасположение
Ростов-на-Дону, проспект ШолоховаНа территории ЖК:
- Детский сад
- Школа
Ипотека
Стоимость квартиры
11 938 250 ₽
Первоначальный взнос
20%
Срок
Семейная ипотека 6%Льготная ипотека для семей с детьми
57 189 ₽/мес6%
Базовая программаБез требований к семейному положению и наличию детей
232 148 ₽/мес29,2%
Другие способы покупки
- 235домов строится
в 235 ЖК - 425домов сдано
в 425 ЖК
Отправляя заявку, вы даёте своё согласие на обработку персональных данных
Другие ЖК застройщика ЮгСтройИнвест (ЮСИ)
Смотреть все ЖК застройщика- Сдача: 1 кв. 2027 г.
- Есть сданные
| 1-комн. | 54 м² | 10,5 млн ₽ |
| 2-комн. | 70 м² | 12 млн ₽ |
| 3-комн. | 69 - 93 м² | 13,4 - 18,6 млн ₽ |
| 4+ комн. | 135 - 178 м² | цена по телефону |
В ипотеку от 44 235 ₽/мес
Жилой комплекс бизнес-класса с одним из лучших видов на город и природную красоту! Собственный парк 14 га, два детских сада, школа, поликлин...
- Сдача: 2 кв. 2028 г.
- Есть сданные
| 1-комн. | 31 - 53 м² | цена по телефону |
| 2-комн. | 49 - 71 м² | цена по телефону |
| 3-комн. | 61 - 85 м² | цена по телефону |
Умный квартал, реализованный в рамках проекта комплексного развития территории в районе старого Аэропорта.
- Сдача: 4 кв. 2028 г.
- Есть сданные
| 1-комн. | 32 - 43 м² | 5,1 - 6,6 млн ₽ |
| 2-комн. | 51 - 66 м² | 7,6 - 9,1 млн ₽ |
| 3-комн. | 67 - 91 м² | 9,2 - 12 млн ₽ |
В ипотеку от 21 461 ₽/мес
Второй этап масштабного проекта «Новый Ростов» на легендарной территории Старого аэропорта.
- Сдача: 2 кв. 2029 г.
| 1-комн. | 31 - 46 м² | 5,3 - 7,3 млн ₽ |
| 2-комн. | 49 - 68 м² | 8 - 9,7 млн ₽ |
| 3-комн. | 70 - 90 м² | 10,3 - 12,8 млн ₽ |
В ипотеку от 22 352 ₽/мес
Новый масштабный проект от «ЮгСтройИнвест» на территории Нового Ростова. В проекте школа, детский сад, благоустроенные аллеи для прогулок и ...
- Сдан: 2 кв. 2025 г.
| 1-комн. | 60 м² | 7,3 млн ₽ |
| 2-комн. | 38 - 75 м² | цена по телефону |
| 3-комн. | 68 - 81 м² | цена по телефону |
В ипотеку от 30 622 ₽/мес
ЖК «61 квартал» в Ростове - масштабный проект застройки на участке 11 га в престижном районе города. Свой детский сад, школа, подземные парк...









