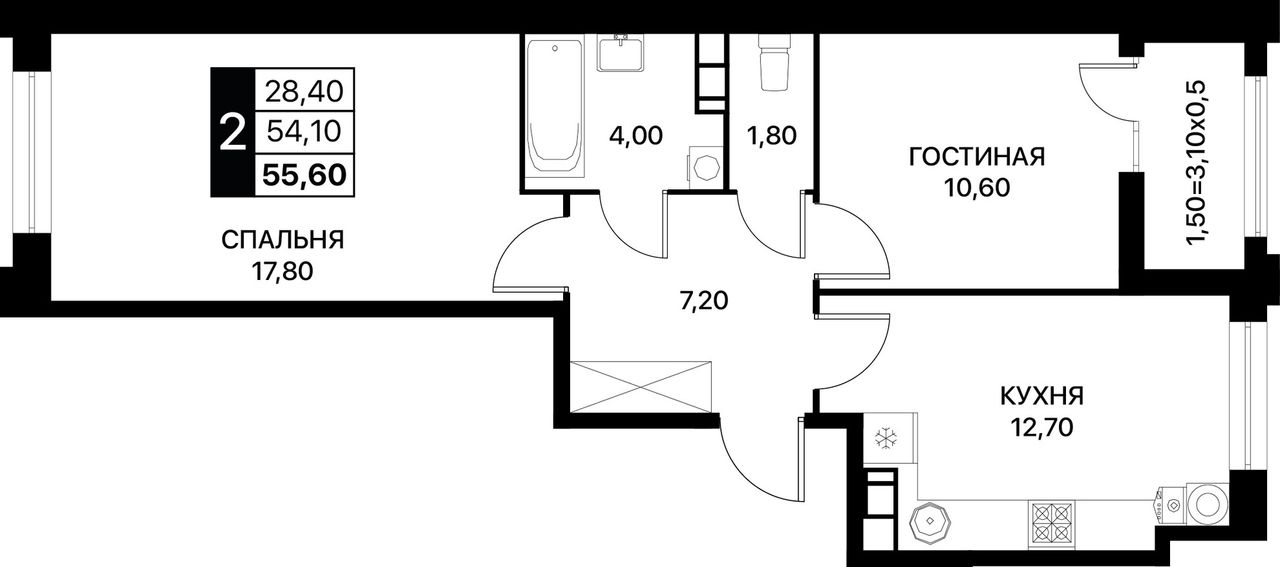
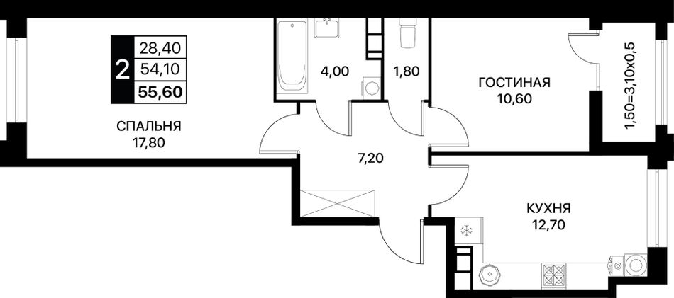
2-комнатная — 55,6 м² 4/12 эт. в Сияние
О квартире
Комнат2
Общая площадь55,6 м²
Жилая площадь30,5 м²
Кухня12,7 м²
Этаж4 из 12
Номер квартиры№69
ОтделкаБез отделки
Санузел2 совмещ.
Литер 24/1 — станет приватной резиденцией для каждого жителя квартала на Шолохова «Сияния». Благодаря малой этажности и небольшому количеству квартир 24 литер станет идеальным местом для восстановления сил и обретения баланса.
Расположение дома на первой парковой линии подарит уникальную возможность каждый день выходить на приятные прогулки, а также потрясающий вид на зеленые насаждения и храмовый комплекс. Территория парка будет насыщена инфраструктурой, в том числе современными спортивными и детскими площадками, прогулочными зонами и локациями для общественных мероприятий.
Динамика цены
Изменялась от 7 361 440 до 7 464 300 ₽За последние 4 месяца цена повысилась на 102 860 ₽
О доме
- КорпусЛитер 24/1
- Срок сдачи4 кв. 2028 г.
- Количество этажей12
- КлассКомфорт
- Тип домаМонолит-кирпич
Доступные варианты отделки
С ремонтом
White BoxОтправляя заявку, вы даёте своё согласие на обработку персональных данных
О проекте ЖК «Сияние»

- Застройщик
- Кол-во корпусов17 корпусов
- Сроки сдачи2028-2032
- КлассКомфорт+
- Тип домаМонолит-кирпич
- ПарковкаПодземная
Второй этап масштабного проекта «Новый Ростов» на легендарной территории Старого аэропорта.
Подробнее о ЖКОсобенности проекта
Уникальный парк
Впечатляющая архитектура
Детский сад
Собственная школа
Торговая галерея
Место силы и спокойствия
Зонирование двора
Подземный паркинг
Индивидуальное отоплениеРасположение
Ростов-на-Дону, проспект ШолоховаНа территории ЖК:
- Детский сад
- Школа
Ипотека
Стоимость квартиры
7 492 100 ₽
Первоначальный взнос
20%
Срок
Семейная ипотека 6%Льготная ипотека для семей с детьми
35 890 ₽/мес6%
Базовая программаБез требований к семейному положению и наличию детей
145 689 ₽/мес29,2%
Другие способы покупки
- 187домов строится
в 187 ЖК - 410домов сдано
в 410 ЖК
Отправляя заявку, вы даёте своё согласие на обработку персональных данных
Другие ЖК застройщика ЮгСтройИнвест (ЮСИ)
Смотреть все ЖК застройщика- Сдача: 3 кв. 2031 г.
| 1-комн. | 31 - 46 м² | 4,5 - 7,7 млн ₽ |
| 2-комн. | 49 - 68 м² | 6,6 - 8,1 млн ₽ |
| 3-комн. | 70 - 90 м² | 8,6 - 11 млн ₽ |
В ипотеку от 19 052 ₽/мес
Новый масштабный проект от «ЮгСтройИнвест» на территории Нового Ростова. В проекте школа, детский сад, благоустроенные аллеи для прогулок и ...
- Сдача: 4 кв. 2028 г.
- Есть сданные
| 1-комн. | 32 - 43 м² | 4,8 - 6,4 млн ₽ |
| 2-комн. | 51 - 61 м² | 7,1 - 8 млн ₽ |
| 3-комн. | 70 - 86 м² | 8,7 - 10,5 млн ₽ |
В ипотеку от 20 156 ₽/мес
Второй этап масштабного проекта «Новый Ростов» на легендарной территории Старого аэропорта.
- Сдача: 1 кв. 2027 г.
- Есть сданные
| 1-комн. | 35 - 54 м² | 6,3 - 9,9 млн ₽ |
| 2-комн. | 54 - 70 м² | 8,4 - 11,3 млн ₽ |
| 3-комн. | 69 - 93 м² | 9,7 - 16,4 млн ₽ |
| 4+ комн. | 135 - 178 м² | цена по телефону |
В ипотеку от 26 308 ₽/мес
Жилой комплекс бизнес-класса с одним из лучших видов на город и природную красоту! Собственный парк 14 га, два детских сада, школа, поликлин...
- Сдача: 2 кв. 2028 г.
- Есть сданные
| 1-комн. | 32 м² | 4,9 - 7,3 млн ₽ |
| 2-комн. | 50 - 71 м² | 7,1 - 8,4 млн ₽ |
| 3-комн. | 83 м² | 10,1 - 10,3 млн ₽ |
В ипотеку от 15 480 ₽/мес
ЖК «Smartpolét» (Смартполёт) в Ростове-на-Дону от «ЮгСтройИнвест» - умный квартал, реализованный в рамках проекта комплексного развития терр...
| 1-комн. | 37 - 62 м² | цена по телефону |
| 2-комн. | 55 - 83 м² | цена по телефону |
| 3-комн. | 68 - 108 м² | цена по телефону |



























