2-комнатная — 66,1 м² 5/12 эт. в Квартал впечатлений Эстет
О квартире
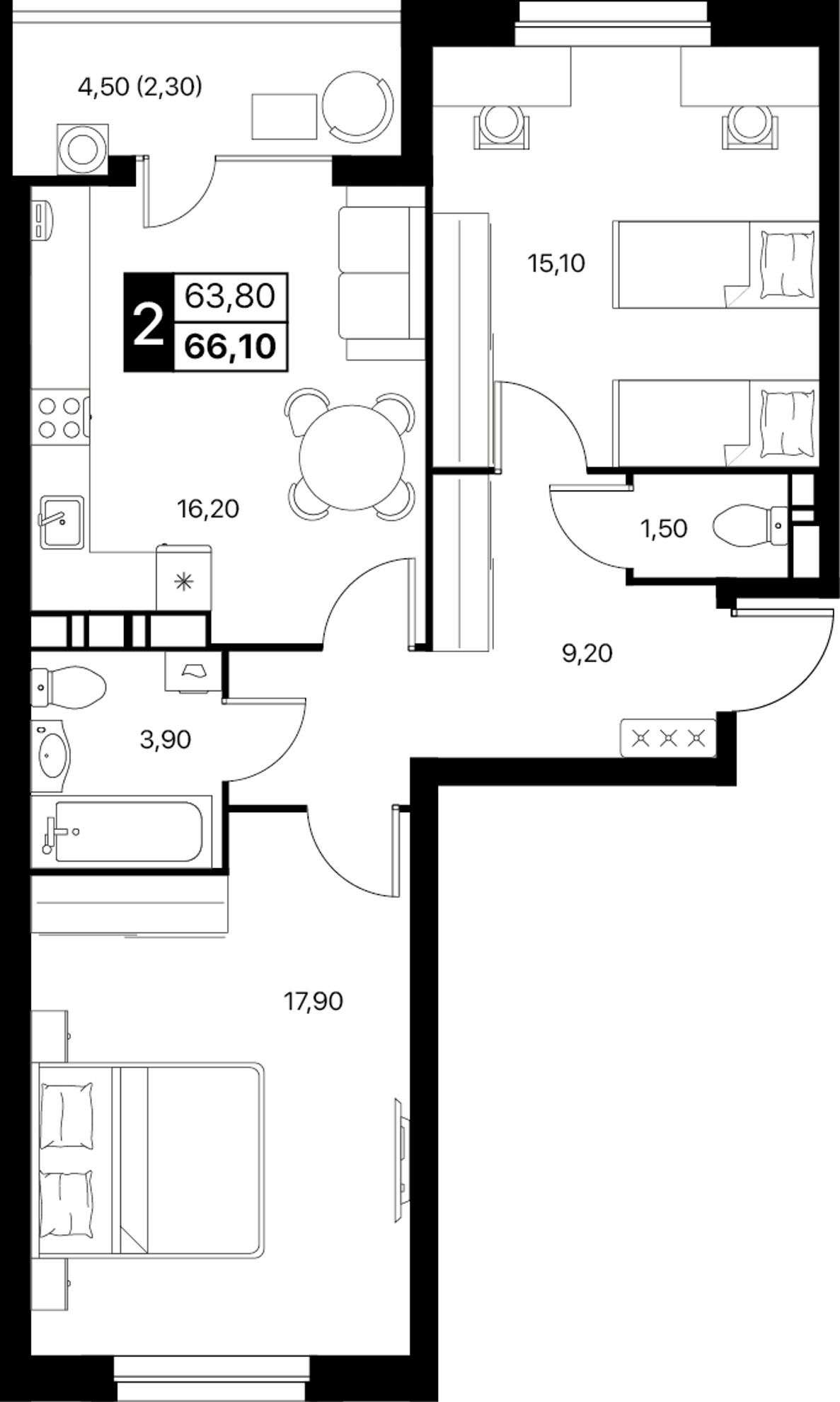
Комнат2
Общая площадь66,1 м²
Жилая площадь33 м²
Кухня16,2 м²
Этаж5 из 12
Номер квартиры№62
ОтделкаБез отделки
Санузел2 совмещ.
Особенностью квартала стало расположение на территории комплексного развития «Новый Ростов», который станет новым центром города и где предусмотрено создание жилой среды и социальной инфраструктуры — запланированы более 60 новых городских объектов, в их числе: 6 школ, 11 детских садов, 2 парка и 14 бульваров, поликлиники для взрослых и детей, спортивно-зрелищные комплексы, храмы, концертные и выставочные залы, ТЦ, правительственный и деловой кварталы. В проект инвестируют 132 млрд рублей.
Квартал Впечатлений — ближайший микрорайон к новому ОКДЦ.
В 10 минутах от квартала находится новый Центральный автовокзал, откуда можно добраться в города Ростовской области.
Новый парк - 2 минуты
Парк Авиаторов - 5 минут
ТЦ Мега - 10 минут
Центр города - 15 минут
ЖД вокзал - 30 минут
Аэропорт - 40 минут
Уникальная для Ростова локация: одинаково близко и удобно добраться до центра города и до выезда из Ростова, в сторону Азовского и Черного морей.
Динамика цены
Изменялась от 7 740 310 до 9 138 325 ₽В этом месяце цена снизилась на 793 200 ₽
О доме
- КорпусЛитер 45 корпус 2
- Срок сдачи3 кв. 2031 г.
- Количество этажей12
- КлассКомфорт
- Тип домаМонолит-кирпич
Доступные варианты отделки
С мебелью
С отделкой
ПредчистоваяОтправляя заявку, вы даёте своё согласие на обработку персональных данных
О проекте ЖК «Квартал впечатлений Эстет»

- Застройщик
- Кол-во корпусов17 корпусов
- Сроки сдачи2029-2034
- КлассКомфорт
- Тип домаМонолит-кирпич
- ПарковкаНаземная, Многоуровневая, Подземная
Новый масштабный проект от «ЮгСтройИнвест» на территории Нового Ростова. В проекте школа, детский сад, благоустроенные аллеи для прогулок и ландшафтное озеленение двора.
Подробнее о ЖКОсобенности проекта
Архитектура
Школа
Детский сад
Благоустройство
Инфраструктура
Лучшие эмоции
Концепция тишины
Тематические парки
Всесезонный ландшафт
Паркинг
Повышенная безопасность и комфорт
Сервис для резидентовРасположение
Ростов-на-Дону, Берберовская улицаНа территории ЖК:
- Детский сад
- Школа
Ипотека
Стоимость квартиры
8 001 405 ₽
Первоначальный взнос
20%
Срок
Семейная ипотека 6%Льготная ипотека для семей с детьми
38 330 ₽/мес6%
Базовая программаБез требований к семейному положению и наличию детей
155 593 ₽/мес29,2%
Другие способы покупки
- 208домов строится
в 208 ЖК - 410домов сдано
в 410 ЖК
Отправляя заявку, вы даёте своё согласие на обработку персональных данных
Другие ЖК застройщика ЮгСтройИнвест (ЮСИ)
Смотреть все ЖК застройщика- Сдача: 2 кв. 2029 г.
| 1-комн. | 31 - 46 м² | 4,5 - 7,8 млн ₽ |
| 2-комн. | 50 - 68 м² | 6,7 - 8,2 млн ₽ |
| 3-комн. | 70 - 90 м² | 8,6 - 11,1 млн ₽ |
В ипотеку от 19 052 ₽/мес
Новый масштабный проект от «ЮгСтройИнвест» на территории Нового Ростова. В проекте школа, детский сад, благоустроенные аллеи для прогулок и ...
- Сдача: 4 кв. 2028 г.
- Есть сданные
| 1-комн. | 32 - 43 м² | 4,8 - 6,5 млн ₽ |
| 2-комн. | 51 - 59 м² | 7,2 - 8 млн ₽ |
| 3-комн. | 70 - 86 м² | 8,8 - 10,6 млн ₽ |
В ипотеку от 20 291 ₽/мес
Второй этап масштабного проекта «Новый Ростов» на легендарной территории Старого аэропорта.
- Сдача: 1 кв. 2027 г.
- Есть сданные
| 1-комн. | 35 - 54 м² | 6,5 - 9,9 млн ₽ |
| 2-комн. | 54 - 70 м² | 8,4 - 11,4 млн ₽ |
| 3-комн. | 69 - 93 м² | 11,1 - 16,5 млн ₽ |
| 4+ комн. | 135 - 178 м² | цена по телефону |
В ипотеку от 27 128 ₽/мес
Жилой комплекс бизнес-класса с одним из лучших видов на город и природную красоту! Собственный парк 14 га, два детских сада, школа, поликлин...
- Сдача: 2 кв. 2028 г.
- Есть сданные
| 1-комн. | 32 м² | 7,3 млн ₽ |
| 2-комн. | 50 - 71 м² | 7,2 - 8,5 млн ₽ |
| 3-комн. | 83 м² | 10,2 - 10,3 млн ₽ |
В ипотеку от 22 508 ₽/мес
ЖК «Smartpolét» (Смартполёт) в Ростове-на-Дону от «ЮгСтройИнвест» - умный квартал, реализованный в рамках проекта комплексного развития терр...
| 1-комн. | 29 - 53 м² | цена по телефону |
| 2-комн. | 47 - 74 м² | цена по телефону |
| 3-комн. | 82 м² | 9,9 млн ₽ |
В ипотеку от 41 608 ₽/мес
Новый ЖК комфорт класса с благоустроенной территорией и большим сквером для прогулок! Закрытый двор, удобные планировки квартир, детский сад...









