3-комнатная — 66,04 м² 5/16 эт. в Дыхание
О квартире
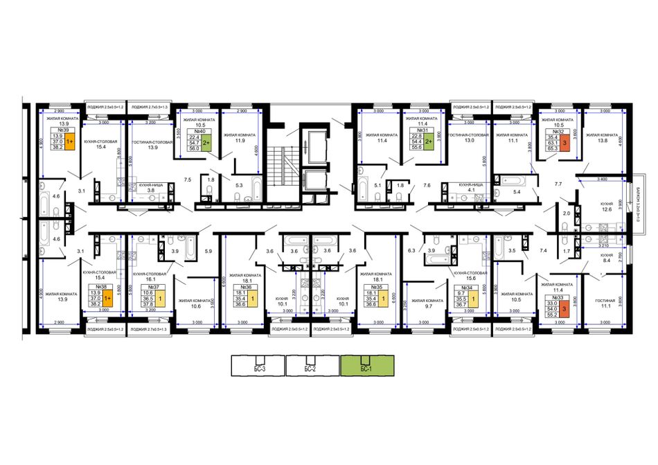
Комнат3
Общая площадь66,04 м²
Кухня12,6 м²
Этаж5 из 16
Номер квартиры№32
ОтделкаПредчистовая
Трехкомнатная квартира в жилом комплексе «Дыхание» — это просторное и функциональное жилье для современной семьи. Три изолированные комнаты позволяют каждому члену семьи иметь свое личное пространство: спальню, детскую, кабинет или гостевую — все организуется легко и удобно. Просторная кухня создает комфортную зону для приготовления пищи и семейных трапез, а при желании легко дополняется обеденной или гостевой зоной. Особое преимущество планировки — наличие и лоджии, и балкона. Это дает дополнительные возможности для обустройства: одна зона может стать уютным уголком для отдыха с панорамным видом, вторая — практичным подсобным помещением, зимним садом или зоной хранения.
Динамика цены
Изменялась от 8 423 700 до 12 067 440 ₽За последние 6 месяцев цена снизилась на 1 483 300 ₽
О доме
- КорпусЛитер 29
- Срок сдачиСдан в 3 кв. 2025 г.
- Количество этажей16
- КлассКомфорт
- Тип домаМонолит-кирпич
Доступные варианты отделки
С отделкой
ПредчистоваяОтправляя заявку, вы даёте своё согласие на обработку персональных данных
О проекте ЖК «Дыхание»

- Застройщик
- Кол-во корпусов32 корпуса
- Сроки сдачи2026
- КлассКомфорт
- Тип домаМонолит-кирпич
- ПарковкаНаземная
Благоустройство ЖК «Дыхание» впечатляет! Три детских садика, школа, большая торговая галерея, яблоневый сад и прогулочные аллеи с перголами - все это создано с заботой для жильцов нового ЖК.
Подробнее о ЖКОсобенности проекта
Школа
Детские сады
Торговая галерея
Зеленые зоны
Домашним питомцам
Новый взгляд
Детские площадки
Зоны спорта
Зоны отдыха
Wi-Fi во дворе
Велосипедные дорожки
Мангальные зоны
Паркинг
Система «Безопасный двор»
Автономная котельнаяРасположение
Краснодар, улица Лётчика Позднякова, 2 лит 29На территории ЖК:
- Детский сад
- Школа
Ипотека
Стоимость квартиры
10 170 160 ₽
Первоначальный взнос
20%
Срок
Семейная ипотека 6%Льготная ипотека для семей с детьми
48 719 ₽/мес6%
Базовая программаБез требований к семейному положению и наличию детей
197 766 ₽/мес29,2%
Другие способы покупки
- 229домов строится
в 229 ЖК - 159домов сдано
в 159 ЖК
Отправляя заявку, вы даёте своё согласие на обработку персональных данных
Другие ЖК застройщика ССК
Смотреть все ЖК застройщика- Сдача: 4 кв. 2026 г.
- Есть сданные
| 1-комн. | 35 - 69 м² | 10,9 - 18,6 млн ₽ |
| 2-комн. | 51 - 77 м² | 13,9 - 22,2 млн ₽ |
| 3-комн. | 79 - 106 м² | 16,6 - 23,1 млн ₽ |
В ипотеку от 45 609 ₽/мес
Стильные двухцветные фасады, развитая инфраструктура, 2 детских садика и школа на территории комплекса. Квартиры с собственными террасами и ...
- Сдача: 2 кв. 2026 г.
- Есть сданные
| Студия | 20 - 29 м² | цена по телефону |
| 1-комн. | 31 - 41 м² | цена по телефону |
| 2-комн. | 46 - 65 м² | цена по телефону |
| 3-комн. | 75 м² | цена по телефону |
Единый европейский стиль, закрытая благоустроенная территория, удобная локация в районе с развитой инфраструктурой - все это ЖК «Свобода».
| Студия | 29 - 30 м² | 12,6 - 12,7 млн ₽ |
| 1-комн. | 32 - 54 м² | цена по телефону |
| 2-комн. | 66 - 84 м² | 27,3 - 34,8 млн ₽ |
| 3-комн. | 80 - 133 м² | цена по телефону |
| 4+ комн. | 115 м² | 47,3 млн ₽ |
В ипотеку от 52 886 ₽/мес
Премиум-класс с развитой внутренней инфраструктурой. Собственный ресторан с террасой, фитнес-клуб с бассейном, двухуровневый паркинг для авт...
- Сдан: 4 кв. 2025 г.
| Студия | 20 - 27 м² | цена по телефону |
| 1-комн. | 42 - 46 м² | 7,5 - 9,9 млн ₽ |
| 2-комн. | 63 - 72 м² | 10,5 - 14,9 млн ₽ |
| 3-комн. | 82 - 85 м² | цена по телефону |
В ипотеку от 31 362 ₽/мес
Жилой комплекс с удобной локацией и развитой инфраструктурой - два детских садика, школа, большой торговый кластер, парковки для автомобилей...
- Сдача: 1 кв. 2026 г.
- Есть сданные
| 1-комн. | 38 - 58 м² | 6,3 - 9,9 млн ₽ |
| 2-комн. | 56 - 74 м² | 9 - 12 млн ₽ |
| 3-комн. | 71 - 105 м² | 10,9 - 15,1 млн ₽ |
| 4+ комн. | 115 - 129 м² | 17 - 19,2 млн ₽ |
В ипотеку от 26 353 ₽/мес
Единая архитектура фасадов, благоустроенная территория с собственным прогулочным сквером, детский садик и большая торговая галерея на террит...





















