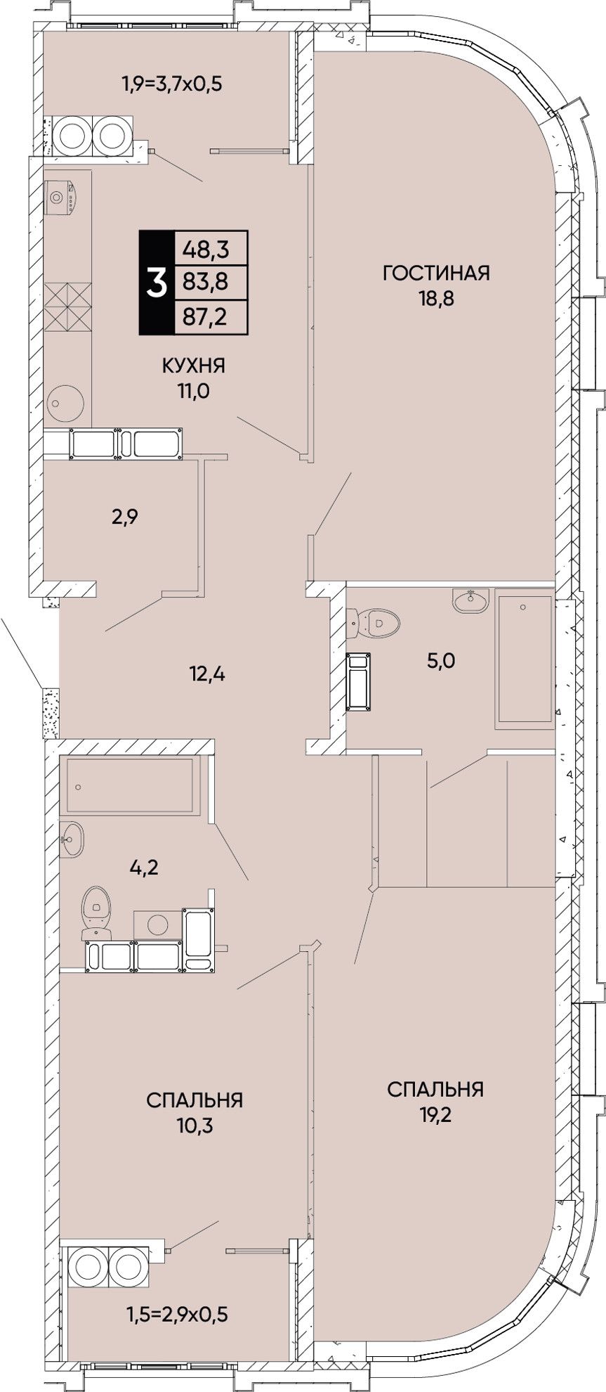
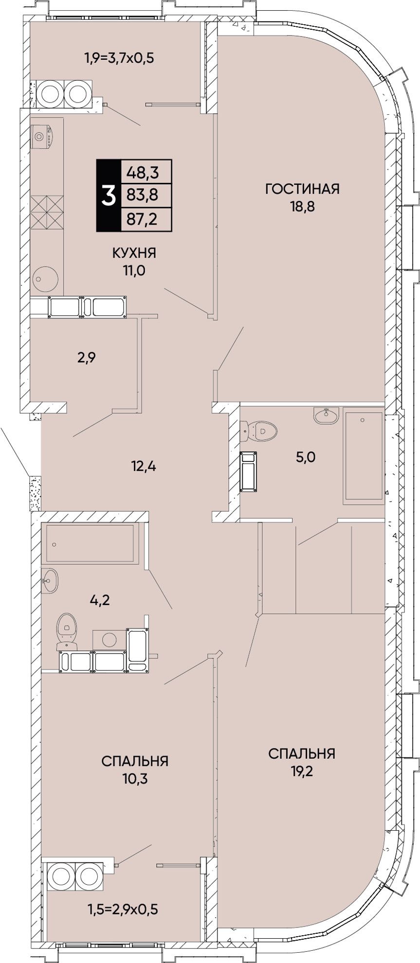
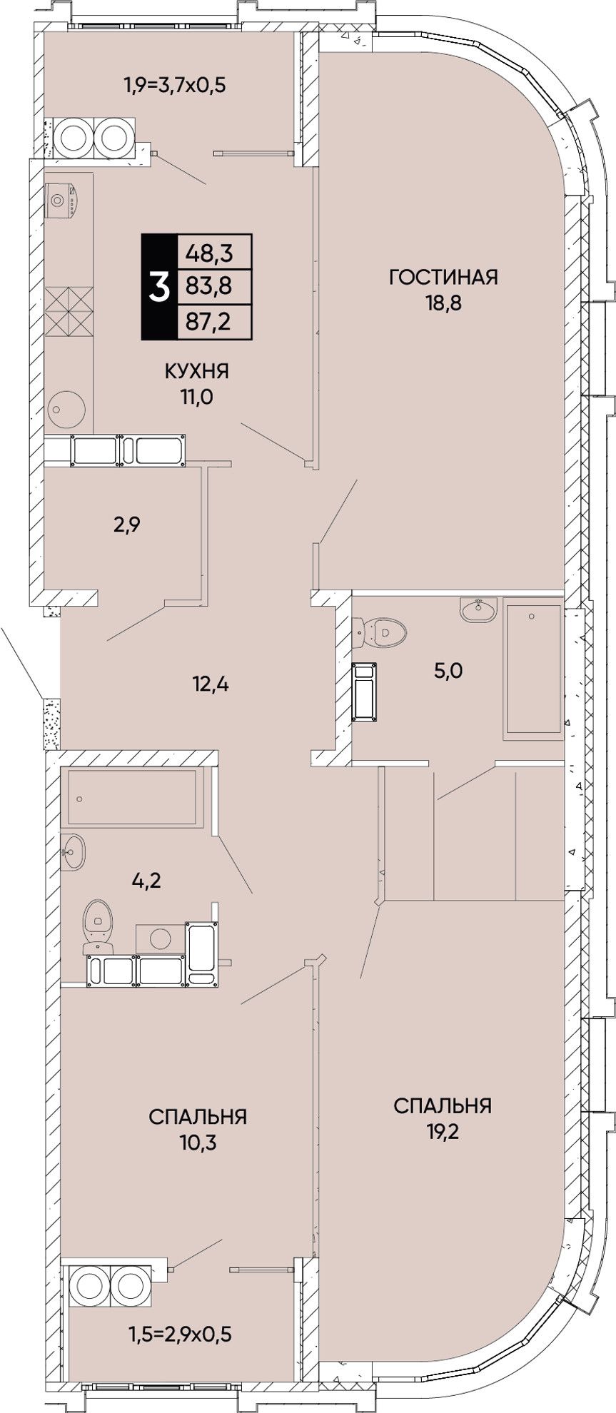
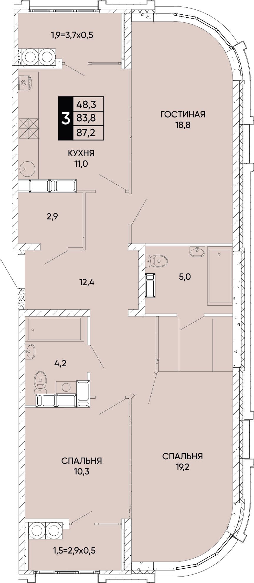
3-комнатная — 87,2 м² 20/22 эт. в Левобережье
О квартире
Комнат3
Общая площадь87,2 м²
Жилая площадь48,3 м²
Кухня11 м²
Высота потолков2,74
Этаж20 из 22
Номер квартиры№335
ОтделкаПредчистовая
Санузел2 совмещ.
Первая линия «Левобережья»
Видовые квартиры с видом на Панораму города.
Прямо у дома новая современная школа на 1100 учеников
Социальная инфраструктура: в нескольких минутах два детских сада на 200 мест
В шаговой доступности новый парк на Левом берегу, который плавно переходит в квартал у реки. Это создает атмосферу загородной жизни и прекрасный вид из окна.
5 минут от центра мегаполиса.
Удобный доступ ко всем объектам благоустройства «Левобережья», близость ко всей инфраструктуре квартала.
Концепция “двор без машин” создана для безопасности детей и питомцев. Детская площадка для разных возрастов, созданная при участии детских психологов. Для активного образа жизни во дворе будут тренажеры и спортивная зона, а для умиротворенного отдыха - чилаут-зона.
Дом переменной этажности (три модуля от 22 до 18 этажей) , выполненный в технологии вентфасада с отделкой клинкерной плиткой: долговечные, практичные и эстетичные материалы.
Дизайнерская отделка холлов: витражные зеркала, отделка керамогранитом и высокие потолки. Продумано комфортное место для ожидания.
Чистовая отделка white box: базовые работы по стяжке, штукатурке, электрической и сантехнической разводке уже выполнены.
Возможность приобрести квартиру с ремонтом. Три дизайнерских проекта на выбор. Ремонт выполняется в течение 60 дней после сдачи дома и отличается выгодой, чем сделанный самостоятельно.
Индивидуальное отопление дает возможность регулировать температуру в квартире и экономить на счетах.
Удобный заезд с улицы Левобережной прямо к 5 литеру.
Подземный паркинг с возможностью спуститься на стоянку на бесшумном лифте со своего этажа. Это комфорт для жильцов, ведь чтобы сесть в машину не нужно встречаться с непогодой. Защита автомобиля от вандализма, температурного и погодного воздействия.
Рядом с домом - дополнительный паркинг. Выгода на машиноместо до 100 000 ₽.
Большой ассортимент планировок: от компактных однокомнатных до просторных трешек с панорамными окнами, двумя санузлами и большой кухней-столовой.
Динамика цены
Изменялась от 15 129 200 до 16 672 640 ₽В этом месяце цена снизилась на 1 046 400 ₽
О доме
- КорпусЛитер 5
- Срок сдачи1 кв. 2027 г.
- Количество этажей22
- КлассКомфорт
- Тип домаМонолит-кирпич
Доступные варианты отделки
White Box
Без отделкиОтправляя заявку, вы даёте своё согласие на обработку персональных данных
О проекте ЖК «Левобережье»

- Застройщик
- Кол-во корпусов13 корпусов
- Сроки сдачи2027
- КлассКомфорт, Бизнес
- Тип домаМонолит-кирпич
- ПарковкаНаземная, Подземная
Жилой комплекс бизнес-класса с одним из лучших видов на город и природную красоту! Собственный парк 14 га, два детских сада, школа, поликлиника.
Подробнее о ЖКОсобенности проекта
Своя школа
Два детских сада
Парк 14 га
Архитектура
Богатое благоустройство
Поликлиника
Подземный паркинг
Собственная инфраструктура
Авторские холлыРасположение
Ростов-на-Дону, Левобережная улицаНа территории ЖК:
- Детский сад
- Школа
- Поликлиника
Ипотека
Стоимость квартиры
15 129 200 ₽
Первоначальный взнос
20%
Срок
Семейная ипотека 6%Льготная ипотека для семей с детьми
72 475 ₽/мес6%
Базовая программаБез требований к семейному положению и наличию детей
294 198 ₽/мес29,2%
Другие способы покупки
- 208домов строится
в 208 ЖК - 410домов сдано
в 410 ЖК
Отправляя заявку, вы даёте своё согласие на обработку персональных данных
Другие ЖК застройщика ЮгСтройИнвест (ЮСИ)
Смотреть все ЖК застройщика- Сдача: 2 кв. 2029 г.
| 1-комн. | 31 - 46 м² | 4,5 - 7,8 млн ₽ |
| 2-комн. | 50 - 68 м² | 6,7 - 8,2 млн ₽ |
| 3-комн. | 70 - 90 м² | 8,6 - 11,1 млн ₽ |
В ипотеку от 19 052 ₽/мес
Новый масштабный проект от «ЮгСтройИнвест» на территории Нового Ростова. В проекте школа, детский сад, благоустроенные аллеи для прогулок и ...
- Сдача: 4 кв. 2028 г.
- Есть сданные
| 1-комн. | 32 - 43 м² | 4,8 - 6,5 млн ₽ |
| 2-комн. | 51 - 59 м² | 7,2 - 8 млн ₽ |
| 3-комн. | 70 - 86 м² | 8,8 - 10,6 млн ₽ |
В ипотеку от 20 291 ₽/мес
Второй этап масштабного проекта «Новый Ростов» на легендарной территории Старого аэропорта.
- Сдача: 1 кв. 2027 г.
- Есть сданные
| 1-комн. | 35 - 54 м² | 6,5 - 9,9 млн ₽ |
| 2-комн. | 54 - 70 м² | 8,4 - 11,4 млн ₽ |
| 3-комн. | 69 - 93 м² | 11,1 - 16,5 млн ₽ |
| 4+ комн. | 135 - 178 м² | цена по телефону |
В ипотеку от 27 128 ₽/мес
Жилой комплекс бизнес-класса с одним из лучших видов на город и природную красоту! Собственный парк 14 га, два детских сада, школа, поликлин...
- Сдача: 2 кв. 2028 г.
- Есть сданные
| 1-комн. | 32 м² | 7,3 млн ₽ |
| 2-комн. | 50 - 71 м² | 7,2 - 8,5 млн ₽ |
| 3-комн. | 83 м² | 10,2 - 10,3 млн ₽ |
В ипотеку от 22 508 ₽/мес
ЖК «Smartpolét» (Смартполёт) в Ростове-на-Дону от «ЮгСтройИнвест» - умный квартал, реализованный в рамках проекта комплексного развития терр...
| 1-комн. | 29 - 53 м² | цена по телефону |
| 2-комн. | 47 - 74 м² | цена по телефону |
| 3-комн. | 82 м² | 9,9 млн ₽ |
В ипотеку от 41 608 ₽/мес
Новый ЖК комфорт класса с благоустроенной территорией и большим сквером для прогулок! Закрытый двор, удобные планировки квартир, детский сад...













