2-комнатная — 62,1 м² 15/16 эт. в Зеленодар
О квартире
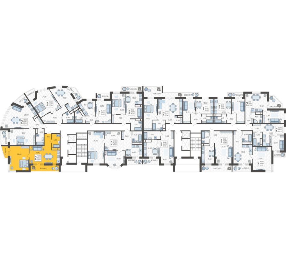
Продаётся 2-комнатная квартира в доме комфорт-класса Зеленодар (Литер 5б), сроком сдачи: 1 кв. 2023, общей площадью 62.1 кв.м., на 15 этаже. Предчистовая отделка, но с возможностью заказать отделку.
Преимущества квартиры: две лоджии
Жилой комплекс находится в одном из самых зелёных районов Краснодара. При этом сюда легко добраться на личном и общественном транспорте Здесь продумана каждая деталь для комфортной и здоровой жизни. Современная архитектура, квартиры с продуманной планировкой, зоны отдыха, спортивные площадки, безопасные дворы и 3 многоуровневые парковки по 500 мест.
Для удобства жителей, на первых этажах расположатся коммерческие помещения с продуктовыми магазинами, кафе, салонами красоты и детскими школами развития.
Проект предполагает строительство собственной школы и детского сада.
Рядом находится вся необходимая инфраструктура:
- • ТРК “Красная площадь”, “Леруа Мерлен” - 10 минут на машине
- • Ближайшая школа №65 - 13 минут пешком
- • Школа № 50, №95 - 5 минут на машине
- • Ясли-сад “Солнышко” - 17 минут пешком
- • Рядом находятся ледовый дворец Ice Palace, спортивный комплекс «Баскет Холл», школа ЦСК и теннисные корты
- • Выезд на Ейское шоссе - дорога на море за час без пробок
О доме
- КорпусЛитер 5б
- Срок сдачиСдан в 4 кв. 2023 г.
- Количество этажей16
- КлассКомфорт
- Тип домаМонолит
Доступные варианты отделки
С отделкой
ПредчистоваяО проекте ЖК «Зеленодар»

- Застройщик
- Кол-во корпусов10 корпусов
- Сроки сдачи2024
- КлассКомфорт
- Тип домаМонолит
- ПарковкаНаземная, Многоуровневая
Особенности проекта
Правильный двор
Различная степень готовности
Ближе к морю
Комфортный дом
Паркинг
Скверы и паркиРасположение
Краснодар, улица Садовое Кольцо, 9- Детский сад
- Школа
Ипотека
- 19домов строится
в 19 ЖК - 216домов сдано
в 216 ЖК
Ещё квартиры в этом ЖК
Другие ЖК застройщика AVA Group
Смотреть все ЖК застройщика- Сдан: 1 кв. 2025 г.
| Студия | 23 - 28 м² | цена по телефону |
| 1-комн. | 37 - 47 м² | 6,9 - 7,9 млн ₽ |
| 2-комн. | 61 м² | 8,3 - 8,8 млн ₽ |
| 3-комн. | 78 - 79 м² | 9,4 - 10,3 млн ₽ |
Стильный фасад, большой наземно-подземный паркинг, детский сад и фитнес центр на территории ЖК. Детские и спортивные площадки на стилобате, ...
- Сдача: 1 кв. 2026 г.
- Есть сданные
| 1-комн. | 30 - 42 м² | цена по телефону |
| 2-комн. | 60 - 68 м² | 8,4 - 10,8 млн ₽ |
| 3-комн. | 85 м² | 11,6 - 11,6 млн ₽ |
Фасады благородных оттенков, европейский стиль в дизайне, три паркинга, детский садик во дворе, удобная локация неподалеку от центра Краснод...
| 2-комн. | 72 м² | 14,5 млн ₽ |
- Сдача: 1 кв. 2026 г.
- Есть сданные
| 1-комн. | 40 - 58 м² | 7,2 - 8,1 млн ₽ |
| 2-комн. | 60 - 450 м² | 8 - 60,8 млн ₽ |
| 3-комн. | 92 - 111 м² | 12,6 - 16,4 млн ₽ |
Яркие фасады с благоустроенной территорией, детские и спортивные площадки на стилобате, трехуровневый подземный паркинг и апарт-отель на тер...
- Сдача: 4 кв. 2026 г.
- Есть сданные
| 1-комн. | 33 - 38 м² | 4,9 - 6,1 млн ₽ |
| 2-комн. | 50 - 60 м² | 6,3 - 7,7 млн ₽ |
| 3-комн. | 68 - 74 м² | 7,9 - 9 млн ₽ |
Яркие фасады в ягодном стиле, собственная торговая галерея на территории, бесплатный школьный автобус для учеников, красивое ландшафтное озе...



























