2-комнатная — 52 м² 16/16 эт. в Зеленодар
О квартире
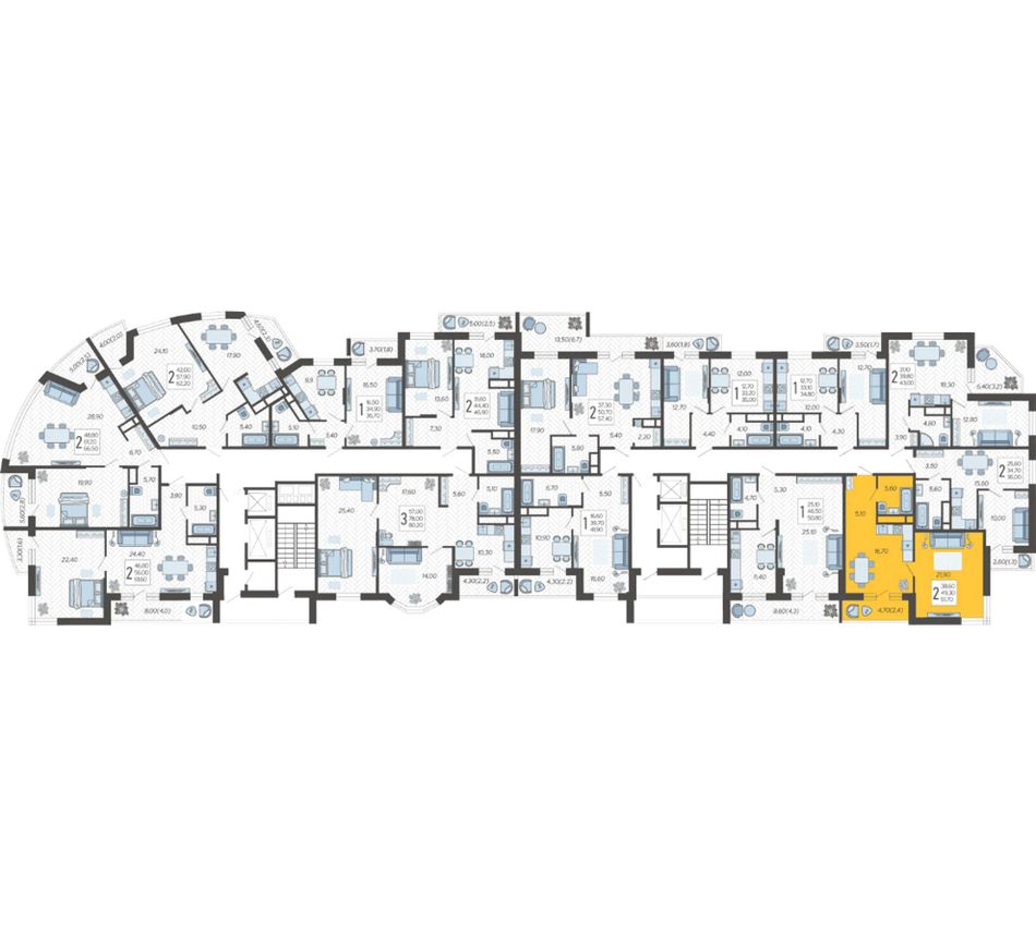
Продаётся 2-комнатная квартира в строящемся доме (Литер 5б), срок сдачи: 1 кв. 2023, общей площадью 52 кв.м., на 16 этаже. Предчистовая отделка, но с возможностью заказать отделку.
Преимущества квартиры: большая кухня, лоджия
Жилой комплекс находится в одном из самых зелёных районов Краснодара. При этом сюда легко добраться на личном и общественном транспорте Здесь продумана каждая деталь для комфортной и здоровой жизни. Современная архитектура, квартиры с продуманной планировкой, зоны отдыха, спортивные площадки, безопасные дворы и 3 многоуровневые парковки по 500 мест.
Для удобства жителей, на первых этажах расположатся коммерческие помещения с продуктовыми магазинами, кафе, салонами красоты и детскими школами развития.
Проект предполагает строительство собственной школы и детского сада.
Рядом находится вся необходимая инфраструктура:
- • ТРК “Красная площадь”, “Леруа Мерлен” - 10 минут на машине
- • Ближайшая школа №65 - 13 минут пешком
- • Школа № 50, №95 - 5 минут на машине
- • Ясли-сад “Солнышко” - 17 минут пешком
- • Рядом находятся ледовый дворец Ice Palace, спортивный комплекс «Баскет Холл», школа ЦСК и теннисные корты
- • Выезд на Ейское шоссе - дорога на море за час без пробок
О доме
- КорпусЛитер 5б
- Срок сдачиСдан в 4 кв. 2023 г.
- Количество этажей16
- КлассКомфорт
- Тип домаМонолит
Доступные варианты отделки
С отделкой
ПредчистоваяО проекте ЖК «Зеленодар»

- Застройщик
- Кол-во корпусов10 корпусов
- Сроки сдачи2024
- КлассКомфорт
- Тип домаМонолит
- ПарковкаНаземная, Многоуровневая
Особенности проекта
Правильный двор
Различная степень готовности
Ближе к морю
Комфортный дом
Паркинг
Скверы и паркиРасположение
Краснодар, улица Садовое Кольцо, 9- Детский сад
- Школа
Ипотека
- 23дома строится
в 23 ЖК - 210домов сдано
в 210 ЖК
Другие ЖК застройщика AVA Group
Смотреть все ЖК застройщика- Сдача: 1 кв. 2026 г.
- Есть сданные
| 1-комн. | 40 - 58 м² | 7,2 - 7,9 млн ₽ |
| 2-комн. | 60 - 450 м² | 8 - 59,9 млн ₽ |
| 3-комн. | 92 - 111 м² | 12,6 - 16,4 млн ₽ |
Яркие фасады с благоустроенной территорией, детские и спортивные площадки на стилобате, трехуровневый подземный паркинг и апарт-отель на тер...
- Сдача: 1 кв. 2026 г.
- Есть сданные
| 1-комн. | 42 м² | 7,5 млн ₽ |
| 2-комн. | 60 - 68 м² | 8,4 - 9,6 млн ₽ |
| 3-комн. | 80 - 85 м² | 11 - 11,6 млн ₽ |
Фасады благородных оттенков, европейский стиль в дизайне, три паркинга, детский садик во дворе, удобная локация неподалеку от центра Краснод...
| 2-комн. | 72 м² | 14,5 млн ₽ |
- Сдан: 1 кв. 2025 г.
| Студия | 23 - 28 м² | цена по телефону |
| 1-комн. | 37 - 47 м² | 6,9 - 8,2 млн ₽ |
| 2-комн. | 61 м² | 8,5 - 8,7 млн ₽ |
| 3-комн. | 78 - 79 м² | 9,5 - 10,3 млн ₽ |
Стильный фасад, большой наземно-подземный паркинг, детский сад и фитнес центр на территории ЖК. Детские и спортивные площадки на стилобате, ...
- Сдан: 4 кв. 2024 г.
| 2-комн. | 52 - 67 м² | 6,3 - 8,2 млн ₽ |
| 1-комн. | 44 - 51 м² | 6,3 - 6,4 млн ₽ |
| 3-комн. | 86 - 111 м² | 10 - 13,2 млн ₽ |
Квартиры комфорт-класса в экологически чистом районе Краснодара! Стильные фасады, школа, детский садик и многоуровневый паркинг во дворе.
- Сдача: 1 кв. 2026 г.
- Есть сданные
| 1-комн. | 33 - 38 м² | 4,8 - 6 млн ₽ |
| 2-комн. | 50 - 60 м² | 6,1 - 7,6 млн ₽ |
| 3-комн. | 68 - 74 м² | 7,8 - 9 млн ₽ |
Яркие фасады в ягодном стиле, собственная торговая галерея на территории, бесплатный школьный автобус для учеников, красивое ландшафтное озе...



























