3-комнатная — 83,2 м² 2/20 эт. в Smartpolét (Смартполёт, Полет)
О квартире
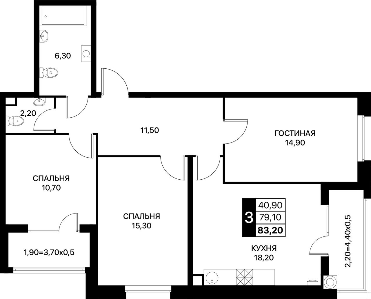
Комнат3
Общая площадь83,2 м²
Жилая площадь40,9 м²
Кухня18,2 м²
Этаж2 из 20
Номер квартиры№4
ОтделкаБез отделки
Санузел2 совмещ.
- Новый кластер в продаже в Умном квартале «smartpolét»;
- Возможность стать одним из обладателей квартиры в квартале на легендарной территории;
- Удобная транспортная развязка: первый кластер на въезде в микрорайон. Перспектива развития транспортной сети вокруг квартала;
- Выход со двора на территорию большого парка;
- Школа и детский сад рядом с домом;
- Концепция «Двор без машин»;
- Холлы с дизайнерской отделкой;
- Чистовая отделка — экономьте время и деньги на ремонте;
- Индивидуальное отопление — регулируйте температуру в квартире;
- Подземный паркинг;
- Возможность спуститься в паркинг на бесшумном лифте со своего этажа;
- Концепция «умного дома» с технологической инфраструктурой.
Динамика цены
Изменялась от 9 568 000 до 11 173 760 ₽В этом месяце цена повысилась на 124 800 ₽
О доме
- КорпусЛитер 3 Корпус 1
- Срок сдачи3 кв. 2029 г.
- Количество этажей20
- КлассКомфорт+
- Тип домаМонолит-кирпич
Доступные варианты отделки
С ремонтом
White BoxОтправляя заявку, вы даёте своё согласие на обработку персональных данных
О проекте ЖК «Smartpolét (Смартполёт, Полет)»

- Застройщик
- Кол-во корпусов17 корпусов
- Сроки сдачи2028-2029
- КлассКомфорт+
- Тип домаМонолит-кирпич
- ПарковкаПодземная
ЖК «Smartpolét» (Смартполёт) в Ростове-на-Дону от «ЮгСтройИнвест» - умный квартал, реализованный в рамках проекта комплексного развития территории в районе старого Аэропорта.
Подробнее о ЖКОсобенности проекта
Детский сад
Школа
Спорткомплекс
Паркинг с доступом на лифте
Новая история
Архитектура
Инфраструктура
Внутренний двор
Парк и сквер
Зоны отдыха
Детские площадки
Спортивные площадки
Wi-Fi на всей территории
Закрытая охраняемая территорияРасположение
Ростов-на-Дону, Берберовская улицаНа территории ЖК:
- Детский сад
Ипотека
Стоимость квартиры
10 325 120 ₽
Первоначальный взнос
20%
Срок
Семейная ипотека 3,5%Для семей с ребёнком до 6 лет или семей с ребёнком-инвалидом
От застройщикаЮгСтройИнвест (ЮСИ)
37 045 ₽/мес3,5%
Семейная ипотека 6%Льготная ипотека для семей с детьми
49 462 ₽/мес6%
Базовая программаБез требований к семейному положению и наличию детей
200 779 ₽/мес29,2%
Другие способы покупки
- 208домов строится
в 208 ЖК - 410домов сдано
в 410 ЖК
Отправляя заявку, вы даёте своё согласие на обработку персональных данных
Другие ЖК застройщика ЮгСтройИнвест (ЮСИ)
Смотреть все ЖК застройщика- Сдача: 2 кв. 2029 г.
| 1-комн. | 31 - 46 м² | 4,5 - 7,8 млн ₽ |
| 2-комн. | 50 - 68 м² | 6,7 - 8,2 млн ₽ |
| 3-комн. | 70 - 90 м² | 8,6 - 11,1 млн ₽ |
В ипотеку от 19 052 ₽/мес
Новый масштабный проект от «ЮгСтройИнвест» на территории Нового Ростова. В проекте школа, детский сад, благоустроенные аллеи для прогулок и ...
- Сдача: 4 кв. 2028 г.
- Есть сданные
| 1-комн. | 32 - 43 м² | 4,8 - 6,5 млн ₽ |
| 2-комн. | 51 - 59 м² | 7,2 - 8 млн ₽ |
| 3-комн. | 70 - 86 м² | 8,8 - 10,6 млн ₽ |
В ипотеку от 20 291 ₽/мес
Второй этап масштабного проекта «Новый Ростов» на легендарной территории Старого аэропорта.
- Сдача: 1 кв. 2027 г.
- Есть сданные
| 1-комн. | 35 - 54 м² | 6,5 - 9,9 млн ₽ |
| 2-комн. | 54 - 70 м² | 8,4 - 11,4 млн ₽ |
| 3-комн. | 69 - 93 м² | 11,1 - 16,5 млн ₽ |
| 4+ комн. | 135 - 178 м² | цена по телефону |
В ипотеку от 27 128 ₽/мес
Жилой комплекс бизнес-класса с одним из лучших видов на город и природную красоту! Собственный парк 14 га, два детских сада, школа, поликлин...
- Сдача: 2 кв. 2028 г.
- Есть сданные
| 1-комн. | 32 м² | 7,3 млн ₽ |
| 2-комн. | 50 - 71 м² | 7,2 - 8,5 млн ₽ |
| 3-комн. | 83 м² | 10,2 - 10,3 млн ₽ |
В ипотеку от 22 508 ₽/мес
ЖК «Smartpolét» (Смартполёт) в Ростове-на-Дону от «ЮгСтройИнвест» - умный квартал, реализованный в рамках проекта комплексного развития терр...
| 1-комн. | 29 - 53 м² | цена по телефону |
| 2-комн. | 47 - 74 м² | цена по телефону |
| 3-комн. | 82 м² | 9,9 млн ₽ |
В ипотеку от 41 608 ₽/мес
Новый ЖК комфорт класса с благоустроенной территорией и большим сквером для прогулок! Закрытый двор, удобные планировки квартир, детский сад...














