3-комнатная — 74,36 м² 14/25 эт. в Соколова, 68
О квартире
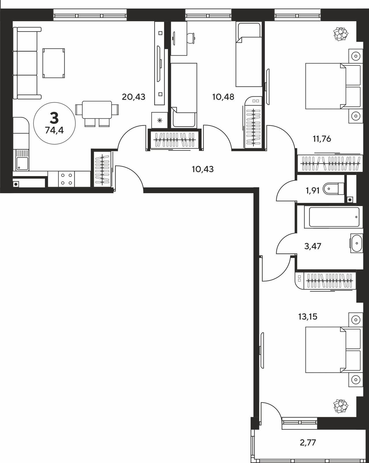
Комнат3
Общая площадь74,36 м²
Жилая площадь71,59 м²
Этаж14 из 25
ОтделкаОтделка неизвестна
Просторная 3-комнатная квартира площадью 74,36 м² расположена на 14 этаже жилого комплекса «ГРИНСАЙД». Кухня площадью 20,65 м² станет уютным местом для семейных обедов и ужинов. Светлые жилые комнаты общей площадью 10,31/11,66/12,96 м² обеспечивают комфортное пространство для отдыха и работы.
Преимущества ЖК «ГРИНСАЙД»:
— Удобное расположение: комплекс находится в центре Ростова-на-Дону, в границах улиц Ленина, Нагибина и Нансена, что обеспечивает быстрый доступ к различным районам города.
— Развитая инфраструктура: в шаговой доступности расположены ТРЦ «Горизонт» и «РИО», фитнес-клубы, рестораны, а также собственная инфраструктура комплекса, включающая школу на 1600 мест и три детских сада.
— Благоустроенная территория: прогулочная аллея с амфитеатром и фонтаном, современные детские и спортивные площадки создают уютное и безопасное пространство для отдыха.
— Готовая отделка: квартира с ремонтом , что позволяет заехать и жить сразу после покупки.
— Комфортная парковка: подземный паркинг на 2000 машиномест избавляет от проблем с поиском свободного места для авто.
ЖК «ГРИНСАЙД» — это жилой комплекс с прогулочной аллеей в 10 минутах от центра города, где территория оборудована так, чтобы жители любого возраста могли комфортно проводить время и отдыхать, не выезжая за пределы комплекса.
Свяжитесь с нами, чтобы уточнить детали и записаться на просмотр квартиры.
О доме
- КорпусКорпус 1
- Срок сдачиСдан в 1 кв. 2023 г.
- Количество этажей25
- КлассБизнес
- Тип домаМонолит-кирпич
Доступные варианты отделки
Без отделкиОтправляя заявку, вы даёте своё согласие на обработку персональных данных
О проекте ЖК «Соколова, 68»

- Застройщик
- Кол-во корпусов2 корпуса
- Сроки сдачи2023
- КлассБизнес
- Тип домаМонолит-кирпич
- ПарковкаПодземная
ЖК «Соколова, 68» - проект бизнес-класса в центре города. Несколько домов каскадного типа переменной этажности (11-25 этажей) и благоустроенная придомовая территория.
Подробнее о ЖКРасположение
Ростов-на-Дону, проспект Соколова, 68Ипотека
Стоимость квартиры
11 780 000 ₽
Первоначальный взнос
20%
Срок
Семейная ипотека 6%Льготная ипотека для семей с детьми
56 431 ₽/мес6%
Базовая программаБез требований к семейному положению и наличию детей
229 071 ₽/мес29,2%
Другие способы покупки
- 31дом строится
в 31 ЖК - 45домов сдано
в 45 ЖК
Отправляя заявку, вы даёте своё согласие на обработку персональных данных
Ещё квартиры в этом ЖК
Студияот 22 до 36 м²3,3 – 7 млн ₽387 объявлений1-комнатнаяот 29 до 46 м²5,2 – 8,8 млн ₽187 объявлений2-комнатнаяот 37 до 62 м²5,5 – 13,7 млн ₽156 объявленийквартира60 м²7,2 млн ₽1 объявление3-комнатнаяот 55 до 89 м²7,5 – 18,2 млн ₽328 объявлений4+ комнатнаяот 104 до 140 м²22,9 – 32,1 млн ₽11 объявлений
Другие ЖК застройщика СК10
Смотреть все ЖК застройщика- Сдача: 4 кв. 2026 г.
| Студия | 28 - 140 м² | цена по телефону |
| 1-комн. | 30 - 133 м² | цена по телефону |
| 2-комн. | 62 м² | 13 - 13,1 млн ₽ |
В ипотеку от 40 737 ₽/мес
Проект бизнес-класса переменной этажности от 16 до 24 этажей в центре Ростова-на-Дону. В локации представлены как квартиры, так и апартамент...
- Сдача: 2 кв. 2026 г.
- Есть сданные
| Студия | 33 м² | 5,2 млн ₽ |
| 1-комн. | 45 м² | 7,7 млн ₽ |
| 2-комн. | 42 - 53 м² | 6,3 - 8,5 млн ₽ |
| 3-комн. | 72 - 76 м² | 10,1 - 13,3 млн ₽ |
В ипотеку от 21 950 ₽/мес
Удобная локация жилого комплекса позволяет быстро добраться до центра города. Благоустроенные зоны отдыха с аркой и фонтаном во дворе, зона ...
- Сдача: 2 кв. 2026 г.
- Есть сданные
| Студия | 23 - 29 м² | 3,2 - 4,7 млн ₽ |
В ипотеку от 13 472 ₽/мес
ЖК «Малина Парк» - инновационный проект со своей школой, детским садом и спортивным стадионом в центре ЗЖМ.







