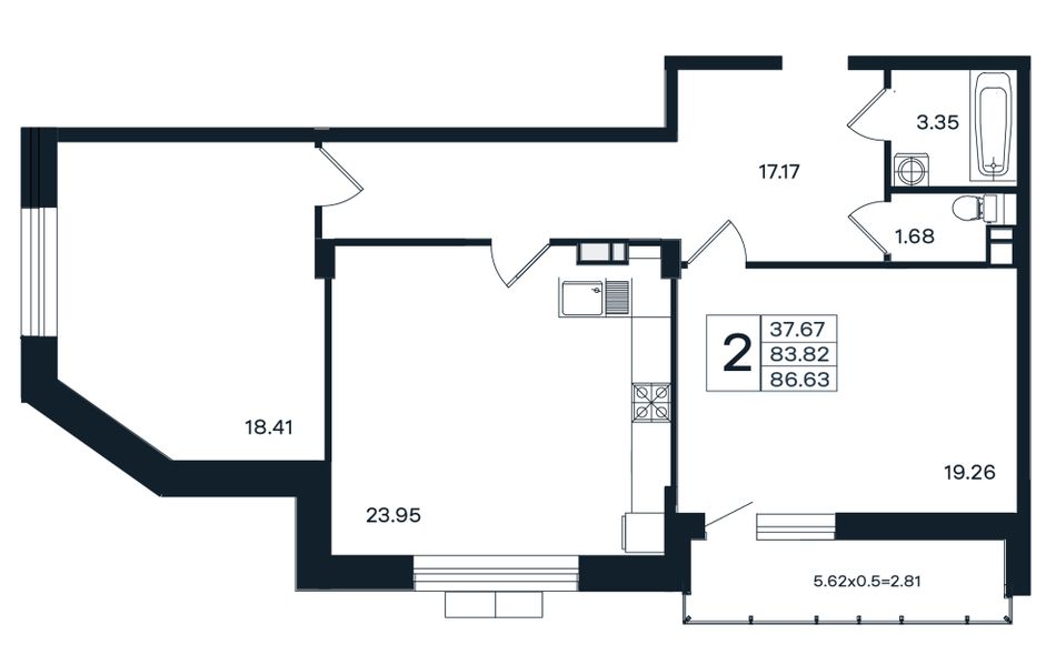
2-комнатная — 86,63 м² 7/12 эт. в ЭНДЕМИК
О квартире
Комнат2
Общая площадь86,63 м²
Жилая площадь36,28 м²
Кухня23,37 м²
Этаж7 из 12
ОтделкаОтделка неизвестна
Санузел1 раздел.
Дом бизнес-класса «Эндемик». Это новый проект в центральной части Краснодара от «ИНСИТИ девелопмент» с акцентом на новое качество жизни. Закрытая территория, престижная локация, повышенный комфорт и выразительный дизайн изящно подчеркивают высокий статус его резидентов. Дом состоит из 4 подъездов 10-12 этажей и рассчитан всего на 234 квартиры.
Эндемик отличают:
· Приватная закрытая территория с детской и спортплощадками
· Доступ в подъезды по системе FACE ID
· Круглосуточное видеонаблюдение
· Центр города – в шаговой доступности
Администратор и консьерж-сервис
· Просторные площади всех представленных квартир
· Многоуровневый и гостевой паркинг
· Авторский дизайн входных групп
· Стильные холлы, витражные подъезды
· Редкие виды растений во дворе, озеленение «4 сезона»
· Видовые квартиры с большими окнами
· Необходимые товары и услуги на нулевых этажах
· Широкий выбор торговых и офисных площадей
Дом редкого вида Эндемик расположен в центральной части Краснодара на Шоссе Нефтяников, в непосредственной близости к главной улице города и культовой локации – легендарной «Авроре». Имеет прямой выезд к основным транспортным артериям: улицам Дзержинского, Тургенева и Ростовскому шоссе. Эндемик - единственный строящийся в настоящий момент дом бизнес-класса в центре Краснодара.
В ближайшем окружении:
· Бульвары и парки (Офицерский, Дальний, Чистяковская роща)
· Улица Красная
· Кинотеатр «Аврора»
· Торговые центры
· Фитнес-центры
· Рестораны и кафе
· 2 детских сада
· 3 гимназии
· Финансовый университет при Правительстве РФ
· Филиал академии ФК «Краснодар»
· Детский магазин
· Медицинские центры
· Строительный гипермаркет
· Заправка
Квартиры в доме сдаются в предчистовой отделке. Возможно объединение планировок квартир (не несущие стены в некоторых смежных квартирах) под ответственность собственника.
Ремонты от застройщика не предусмотрены.
О доме
- КорпусКорпус 1
- Срок сдачи1 кв. 2026 г.
- Количество этажей12
- КлассБизнес
- Тип домаМонолит-кирпич
Доступные варианты отделки
С отделкой
ПредчистоваяОтправляя заявку, вы даёте своё согласие на обработку персональных данных
О проекте ЖК «ЭНДЕМИК»

- Застройщик
- Кол-во корпусов1 корпус
- Сроки сдачи2026
- ПарковкаНаземная, Многоуровневая
ЖК «Эндемик» - новый проект бизнес-класса в центре Краснодара. Стильный фасад с секциями переменной этажности, уютная территория и парковки для автомобилей.
Подробнее о ЖКОсобенности проекта
Зоны отдыха
Спортивные и детские площадки
Многоуровневый и гостевой паркинг
Безопасность и технологииРасположение
Краснодар, улица Шоссе Нефтяников, 26Ипотека
Стоимость квартиры
24 209 999 ₽
Первоначальный взнос
20%
Срок
Семейная ипотека 6%Льготная ипотека для семей с детьми
115 976 ₽/мес6%
Базовая программаБез требований к семейному положению и наличию детей
470 781 ₽/мес29,2%
Другие способы покупки
- 34дома строится
в 34 ЖК - 362дома сдано
в 362 ЖК
Отправляя заявку, вы даёте своё согласие на обработку персональных данных
Другие ЖК застройщика ИНСИТИ
Смотреть все ЖК застройщика- Сдан: 3 кв. 2024 г.
| Студия | 27 - 41 м² | цена по телефону |
| 1-комн. | 29 - 69 м² | цена по телефону |
| 2-комн. | 45 - 73 м² | цена по телефону |
| 3-комн. | 77 - 91 м² | цена по телефону |
Стильные, яркие фасады с цветными акцентами, торговый центр, три детских садика, школа, два многоуровневых паркинга на территории и собствен...
- Сдача: 1 кв. 2026 г.
| Студия | 49 м² | 14,1 млн ₽ |
| 1-комн. | 48 - 70 м² | 14,6 - 19,6 млн ₽ |
| 2-комн. | 71 - 90 м² | 19,5 - 25,5 млн ₽ |
| 3-комн. | 107 м² | 29,8 - 30,2 млн ₽ |
В ипотеку от 59 176 ₽/мес
ЖК «Эндемик» - новый проект бизнес-класса в центре Краснодара. Стильный фасад с секциями переменной этажности, уютная территория и парковки ...
- Сдача: 4 кв. 2027 г.
- Есть сданные
| Студия | 25 - 58 м² | цена по телефону |
| 1-комн. | 35 - 45 м² | 5,3 - 8,4 млн ₽ |
| 2-комн. | 56 - 60 м² | 7,7 - 10,4 млн ₽ |
В ипотеку от 22 308 ₽/мес
Новый микрорайон с развитой инфраструктурой, собственная школа, детский садик, озеро и большой прогулочный бульвар для резидентов ЖК.
- Сдача: 3 кв. 2026 г.
- Есть сданные
| Студия | 22 - 28 м² | 4 - 5,2 млн ₽ |
| 1-комн. | 36 - 47 м² | 6,1 - 7,1 млн ₽ |
| 2-комн. | 42 - 67 м² | 7,3 - 8,7 млн ₽ |
| 3-комн. | 67 - 82 м² | 8,2 - 11,6 млн ₽ |
В ипотеку от 16 631 ₽/мес
Жилой комплекс с развитой инфраструктурой - 4 детских садика, школа, собственная поликлиника, торговый кластер, прогулочные зоны и большой с...
- Сдача: 3 кв. 2026 г.
| Студия | 29 - 30 м² | 4,2 - 4,6 млн ₽ |
| 1-комн. | 42 - 43 м² | 5,8 - 5,9 млн ₽ |
| 2-комн. | 60 - 72 м² | 7,6 - 8,4 млн ₽ |
| 3-комн. | 72 - 78 м² | 7,9 - 8,6 млн ₽ |
В ипотеку от 17 580 ₽/мес
Новый проект строительства в пос. Березовый. Стильные фасады из керамического кирпича, зона коммерции, благоустроенные детские и спортивные ...



















