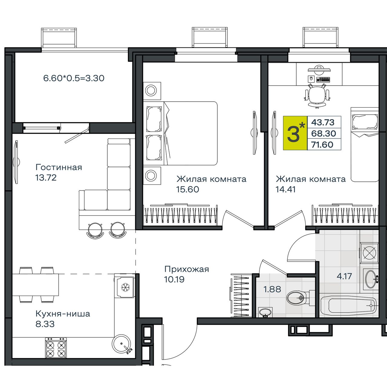
3-комнатная — 71,6 м² 8/8 эт. в МОНО Квартал
О квартире
Комнат3
Общая площадь71,6 м²
Жилая площадь43,77 м²
Кухня8,28 м²
Этаж8 из 8
ОтделкаОтделка неизвестна
Санузел1 раздел.
ЖК МОНО Квартал от «ИНСИТИ девелопмент». Это новый среднеэтажный комплекс в духе молодежного клубного квартала. Комфорт, уют и безопасность – главное трио проекта, сочетающего развитую инфраструктуру городской среды и камерную атмосферу прогрессивного пригорода. Комплекс состоит из 4-х домов высотой 8 этажей.
МОНО Квартал отличают:
· Дворовая территория без машин с детской и спортивной площадками
· Вместительный паркинг по внешнему периметру
· Места для уединенного отдыха
· Сквозные подъезды для комфортного доступа в уютный холл
· Отдельные велобоксы во дворе
· Колясочные в подъездах
· Видеонаблюдение входных групп, вестибюлей, лифтов, колясочных
· Эргономичные планировки квартир разных площадей
· Большие окна и просторные лоджии
· Привлекательный коммерческий блок с витражами на первых этажах
· Внутриквартальный сквер для атмосферных прогулок
· Удобный доступ к остановкам общественного транспорта
ЖК МОНО Квартал расположен в перспективном и развивающемся районе, в локации с низкой густотой населения. В ближайшем расположении:
· Школы (2 сданы и одна на этапе строительства – на 1550 мест в смену)
· Детские сады (2 государственных и несколько частных)
· Детская и городская поликлиники
· Продуктовые магазины
· Торговые центры
· Спортзалы и фитнес-клубы
· Заправка
· Кафе, городской сад
· Строительный магазин
· Выезды на Ейское и Ростовское шоссе
· СК «Город спорта», ТРЦ «Красная площадь»
Динамика цены
Изменялась от 7 754 445 до 8 015 906 ₽За последние 6 месяцев цена повысилась на 5 598 ₽
О доме
- КорпусЛитер 2
- Срок сдачи3 кв. 2026 г.
- Количество этажей8
- КлассСтандарт
- Тип домаМонолит-кирпич
Доступные варианты отделки
ПредчистоваяОтправляя заявку, вы даёте своё согласие на обработку персональных данных
О проекте ЖК «МОНО Квартал»

- Застройщик
- Кол-во корпусов4 корпуса
- Сроки сдачи2026
- ПарковкаНаземная
Новый проект строительства в пос. Березовый. Стильные фасады из керамического кирпича, зона коммерции, благоустроенные детские и спортивные площадки, ландшафтное озеленение.
Подробнее о ЖКОсобенности проекта
Прогулки на свежем воздухе.
Детские площадки
Спортивные площадки
ПаркингРасположение
посёлок Берёзовый, улица имени Профессора МалигоноваИпотека
Стоимость квартиры
8 015 906 ₽
Первоначальный взнос
20%
Срок
Семейная ипотека 6%Льготная ипотека для семей с детьми
38 399 ₽/мес6%
Базовая программаБез требований к семейному положению и наличию детей
155 875 ₽/мес29,2%
Другие способы покупки
- 32дома строится
в 32 ЖК - 360домов сдано
в 360 ЖК
Отправляя заявку, вы даёте своё согласие на обработку персональных данных
Другие ЖК застройщика ИНСИТИ
Смотреть все ЖК застройщика- Сдача: 1 кв. 2026 г.
| Студия | 49 м² | 14,1 млн ₽ |
| 1-комн. | 48 - 70 м² | 14,6 - 19,6 млн ₽ |
| 2-комн. | 71 - 90 м² | 19,5 - 25,5 млн ₽ |
| 3-комн. | 107 м² | 29,8 - 30,2 млн ₽ |
В ипотеку от 59 176 ₽/мес
ЖК «Эндемик» - новый проект бизнес-класса в центре Краснодара. Стильный фасад с секциями переменной этажности, уютная территория и парковки ...
- Сдан: 3 кв. 2024 г.
| Студия | 27 - 41 м² | цена по телефону |
| 1-комн. | 29 - 69 м² | цена по телефону |
| 2-комн. | 45 - 73 м² | цена по телефону |
| 3-комн. | 77 - 91 м² | цена по телефону |
Стильные, яркие фасады с цветными акцентами, торговый центр, три детских садика, школа, два многоуровневых паркинга на территории и собствен...
- Сдача: 4 кв. 2027 г.
- Есть сданные
| Студия | 25 - 58 м² | цена по телефону |
| 1-комн. | 35 - 45 м² | 5,3 - 8,4 млн ₽ |
| 2-комн. | 56 - 60 м² | 7,7 - 10,4 млн ₽ |
В ипотеку от 22 308 ₽/мес
Новый микрорайон с развитой инфраструктурой, собственная школа, детский садик, озеро и большой прогулочный бульвар для резидентов ЖК.
- Сдача: 1 кв. 2026 г.
- Есть сданные
| Студия | 22 - 28 м² | 4,1 - 5,2 млн ₽ |
| 1-комн. | 37 - 42 м² | 5,9 - 6,5 млн ₽ |
| 2-комн. | 51 - 67 м² | 7,3 - 8,7 млн ₽ |
| 3-комн. | 67 - 82 м² | 8,8 - 11,6 млн ₽ |
В ипотеку от 17 128 ₽/мес
Жилой комплекс с развитой инфраструктурой - 4 детских садика, школа, собственная поликлиника, торговый кластер, прогулочные зоны и большой с...
- Сдача: 3 кв. 2026 г.
| Студия | 29 - 30 м² | 4,2 - 4,4 млн ₽ |
| 1-комн. | 40 - 43 м² | 5,3 - 5,8 млн ₽ |
| 2-комн. | 60 - 72 м² | 7,6 - 8,4 млн ₽ |
| 3-комн. | 72 - 78 м² | 7,9 - 8,6 млн ₽ |
В ипотеку от 17 580 ₽/мес
Новый проект строительства в пос. Березовый. Стильные фасады из керамического кирпича, зона коммерции, благоустроенные детские и спортивные ...












