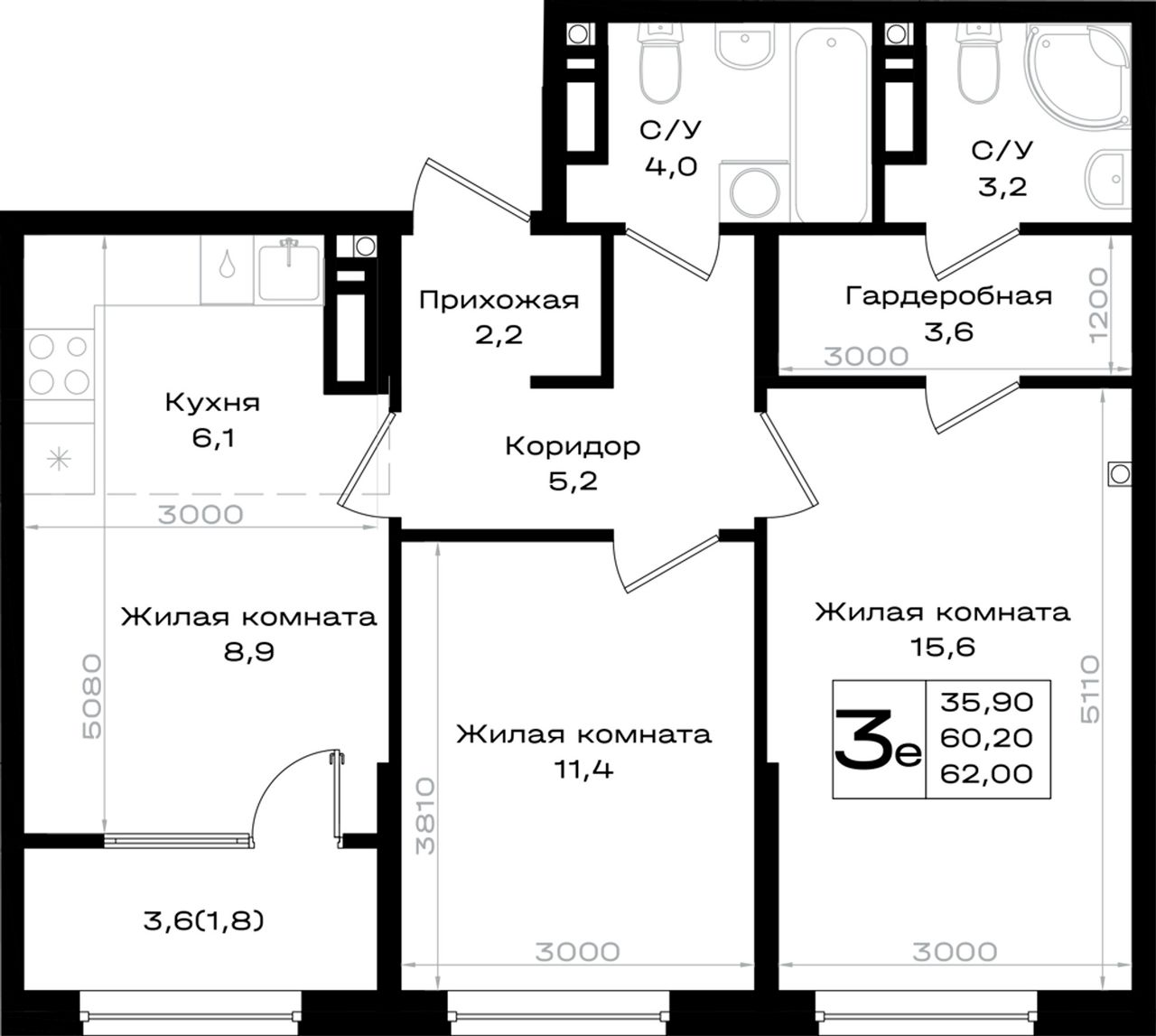
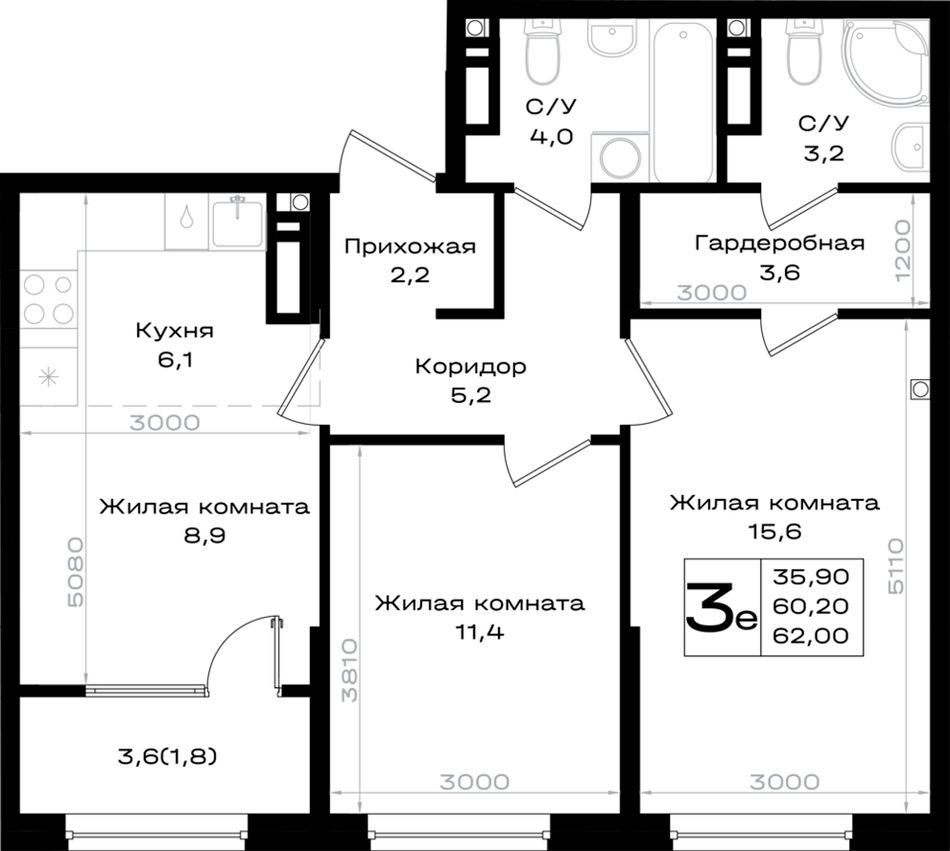
3-комнатная — 62 м² 9/18 эт. в Придонье
О квартире
Комнат3
Общая площадь62 м²
Жилая площадь35,9 м²
Кухня6,1 м²
Этаж9 из 18
ОтделкаЧистовая
Трехкомнатная квартира предлагает продуманное и комфортное пространство: три удобные изолированные комнаты обеспечивают каждому члену семьи личное уютное пространство. Отдельно выделена гардеробная, где с комфортом разместится одежда и аксессуары, освобождая жилые зоны от лишнего хранения. Кухня-ниша органично вписана в общее пространство, не нарушая его целостности, а раздельный санузел добавляет удобства и гигиеничности. Просторные прихожая и коридор обеспечивают легкую циркуляцию и дополнительные возможности для организации порядка. Завершает планировку лоджия — практичное и светлое продолжение интерьера для отдыха, хранения или любимых растений.
О доме
- КорпусКорпус 3.2
- Срок сдачи2 кв. 2028 г.
- Количество этажей18
- КлассКомфорт
- Тип домаМонолит
Доступные варианты отделки
Без отделкиОтправляя заявку, вы даёте своё согласие на обработку персональных данных
О проекте ЖК «Придонье»

- Застройщик
- Кол-во корпусов3 корпуса
- Сроки сдачи2028
- ПарковкаНаземная, Многоуровневая, Подземная
Микрорайон со школой, детскими садами и всей инфраструктурой всего в паре минут от торгового центра и парка МЕГА.
Подробнее о ЖКОсобенности проекта
Удобное расположение
Больше, чем прогулки
Комфортный паркинг
Просторные кладовые
Комфорт и безопасность
Квартиры, наполненные светомРасположение
Аксай, Аксайский проспектНа территории ЖК:
- Детский сад
- Школа
- Поликлиника
Ипотека
Стоимость квартиры
8 060 000 ₽
Первоначальный взнос
20%
Срок
Семейная ипотека 6%Льготная ипотека для семей с детьми
38 611 ₽/мес6%
Базовая программаБез требований к семейному положению и наличию детей
156 733 ₽/мес29,2%
Другие способы покупки
- 228домов строится
в 228 ЖК - 159домов сдано
в 159 ЖК
Отправляя заявку, вы даёте своё согласие на обработку персональных данных
Другие ЖК застройщика ССК
Смотреть все ЖК застройщика- Сдача: 4 кв. 2026 г.
| Студия | 19 - 23 м² | 3,3 - 4 млн ₽ |
| 1-комн. | 32 - 42 м² | 7,4 - 11,7 млн ₽ |
| 2-комн. | 42 - 67 м² | 9,4 - 18 млн ₽ |
| 3-комн. | 62 - 86 м² | 13,4 - 23,2 млн ₽ |
В ипотеку от 13 675 ₽/мес
Новый район с собственной школой, тремя детскими садами, храмом, домом культуры и спортивно-оздоровительным комплексом.


















