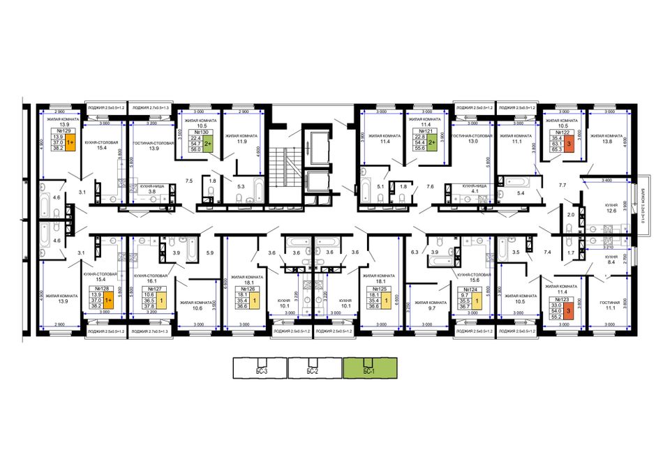
3-комнатная — 65,94 м² 14/16 эт. в Дыхание
О квартире
Комнат3
Общая площадь65,94 м²
Кухня12,6 м²
Этаж14 из 16
Номер квартиры№122
ОтделкаПредчистовая
Трехкомнатная квартира в жилом комплексе «Дыхание» — это просторное и функциональное жилье для современной семьи. Три изолированные комнаты позволяют каждому члену семьи иметь свое личное пространство: спальню, детскую, кабинет или гостевую — все организуется легко и удобно. Просторная кухня создает комфортную зону для приготовления пищи и семейных трапез, а при желании легко дополняется обеденной или гостевой зоной. Особое преимущество планировки — наличие и лоджии, и балкона. Это дает дополнительные возможности для обустройства: одна зона может стать уютным уголком для отдыха с панорамным видом, вторая — практичным подсобным помещением, зимним садом или зоной хранения.
Динамика цены
Изменялась от 10 385 550 до 12 067 440 ₽За последние 6 месяцев цена снизилась на 1 681 890 ₽
О доме
- КорпусЛитер 29
- Срок сдачиСдан в 3 кв. 2025 г.
- Количество этажей16
- КлассКомфорт
- Тип домаМонолит-кирпич
Доступные варианты отделки
С отделкой
ПредчистоваяОтправляя заявку, вы даёте своё согласие на обработку персональных данных
О проекте ЖК «Дыхание»

- Застройщик
- Кол-во корпусов32 корпуса
- Сроки сдачи2025
- КлассКомфорт
- Тип домаМонолит-кирпич
- ПарковкаНаземная
Благоустройство ЖК «Дыхание» впечатляет! Три детских садика, школа, большая торговая галерея, яблоневый сад и прогулочные аллеи с перголами - все это создано с заботой для жильцов нового ЖК.
Подробнее о ЖКОсобенности проекта
Школа
Детские сады
Торговая галерея
Зеленые зоны
Домашним питомцам
Новый взгляд
Детские площадки
Зоны спорта
Зоны отдыха
Wi-Fi во дворе
Велосипедные дорожки
Мангальные зоны
Паркинг
Система «Безопасный двор»
Автономная котельнаяРасположение
Краснодар, улица Лётчика Позднякова, 2 лит 29На территории ЖК:
- Детский сад
- Школа
Ипотека
Стоимость квартиры
10 154 760 ₽
Первоначальный взнос
20%
Срок
Семейная ипотека 6%Льготная ипотека для семей с детьми
48 645 ₽/мес6%
Базовая программаБез требований к семейному положению и наличию детей
197 467 ₽/мес29,2%
Другие способы покупки
- 229домов строится
в 229 ЖК - 153дома сдано
в 153 ЖК
Отправляя заявку, вы даёте своё согласие на обработку персональных данных
Другие ЖК застройщика ССК
Смотреть все ЖК застройщика- Сдача: 4 кв. 2026 г.
- Есть сданные
| 1-комн. | 43 - 69 м² | 11,7 - 18,6 млн ₽ |
| 2-комн. | 56 - 86 м² | 12,8 - 22,1 млн ₽ |
| 3-комн. | 79 - 106 м² | 16,6 - 23,1 млн ₽ |
В ипотеку от 49 156 ₽/мес
Стильные двухцветные фасады, развитая инфраструктура, 2 детских садика и школа на территории комплекса. Квартиры с собственными террасами и ...
- Сдача: 4 кв. 2025 г.
- Есть сданные
| 1-комн. | 38 - 58 м² | 6,3 - 9,9 млн ₽ |
| 2-комн. | 56 - 74 м² | 9 - 12 млн ₽ |
| 3-комн. | 71 - 105 м² | 10,9 - 15,1 млн ₽ |
| 4+ комн. | 115 - 130 м² | 17 - 19,3 млн ₽ |
В ипотеку от 26 353 ₽/мес
Единая архитектура фасадов, благоустроенная территория с собственным прогулочным сквером, детский садик и большая торговая галерея на террит...
- Сдача: 4 кв. 2025 г.
- Есть сданные
| Студия | 20 - 27 м² | цена по телефону |
| 1-комн. | 36 - 50 м² | 7,5 - 9,9 млн ₽ |
| 2-комн. | 63 - 72 м² | 10,5 - 14,9 млн ₽ |
| 3-комн. | 82 - 85 м² | цена по телефону |
В ипотеку от 31 362 ₽/мес
Жилой комплекс с удобной локацией и развитой инфраструктурой - два детских садика, школа, большой торговый кластер, парковки для автомобилей...
- Сдача: 4 кв. 2025 г.
- Есть сданные
| Студия | 23 - 26 м² | цена по телефону |
| 1-комн. | 25 - 42 м² | 5,1 - 8,5 млн ₽ |
| 2-комн. | 51 - 59 м² | 9 - 10,2 млн ₽ |
| 3-комн. | 55 - 67 м² | 8,5 - 10,4 млн ₽ |
В ипотеку от 21 317 ₽/мес
Благоустройство ЖК «Дыхание» впечатляет! Три детских садика, школа, большая торговая галерея, яблоневый сад и прогулочные аллеи с перголами ...
| Студия | 29 - 30 м² | 12,6 - 12,7 млн ₽ |
| 1-комн. | 52 м² | 21,7 млн ₽ |
| 2-комн. | 66 - 84 м² | 27,3 - 34,8 млн ₽ |
| 3-комн. | 80 - 133 м² | цена по телефону |
| 4+ комн. | 115 - 181 м² | 47,3 - 73,2 млн ₽ |
В ипотеку от 52 886 ₽/мес
Премиум-класс с развитой внутренней инфраструктурой. Собственный ресторан с террасой, фитнес-клуб с бассейном, двухуровневый паркинг для авт...





















