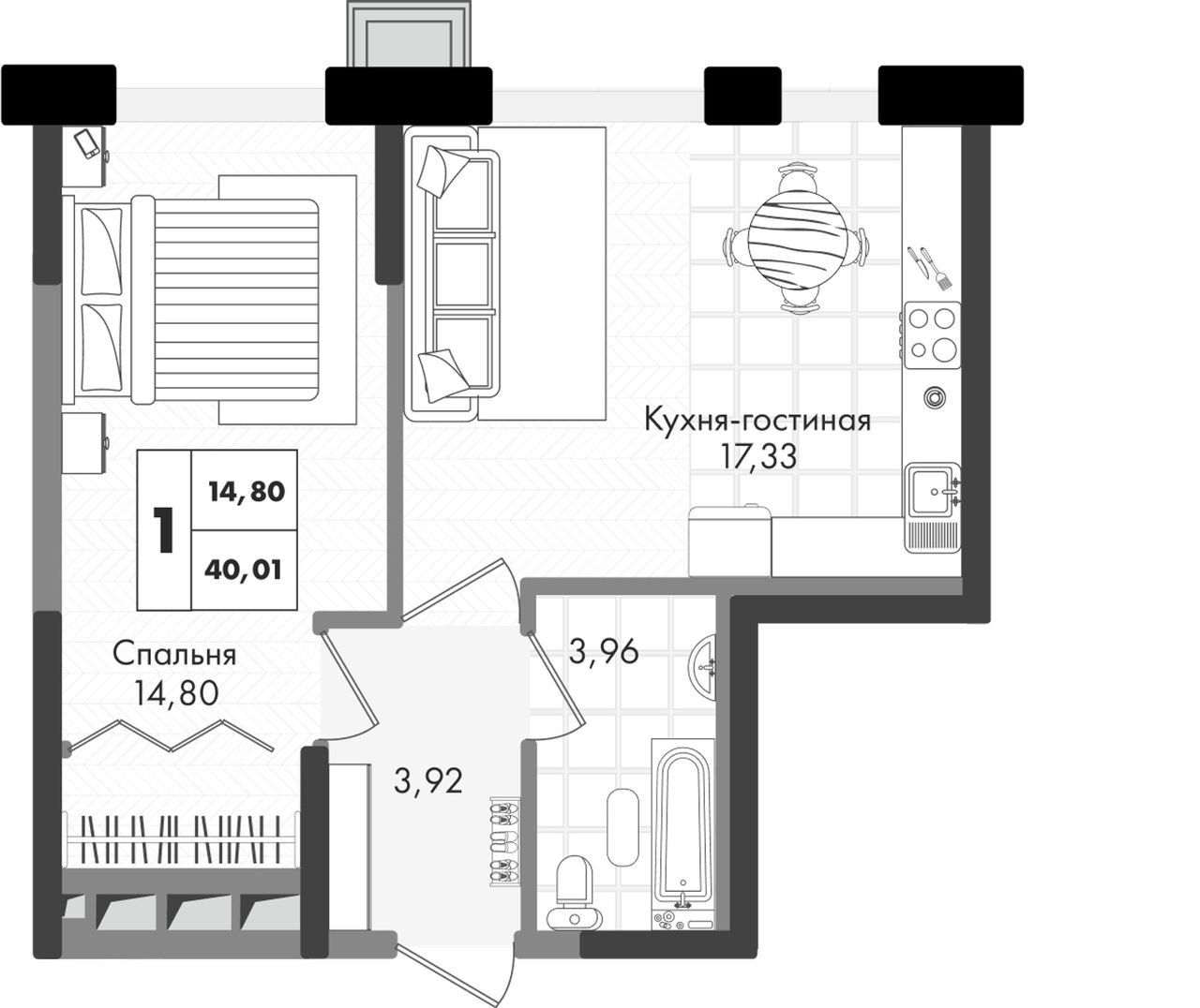
1-комнатная — 40,01 м² 9/9 эт. в Зелёная территория
О квартире
Комнат1
Общая площадь40,01 м²
Жилая площадь14,8 м²
Кухня17,33 м²
Этаж9 из 9
Номер квартиры№71
ОтделкаОтделка неизвестна
Динамика цены
Изменялась от 6 081 520 до 7 176 194 ₽О доме
- КорпусЛитер 1.3
- Срок сдачи4 кв. 2026 г.
- Количество этажей9
- КлассКомфорт
- Тип домаМонолит-кирпич
Доступные варианты отделки
С ремонтом и мебелью
С ремонтом
White BoxАкции и скидки в ЖК «Зелёная территория»
Скидка до 15%
Ремонт в подарок
Отправляя заявку, вы даёте своё согласие на обработку персональных данных
О проекте ЖК «Зелёная территория»

- Застройщик
- Кол-во корпусов13 корпусов
- Сроки сдачи2025-2026
- КлассКомфорт
- Тип домаМонолит-кирпич
- ПарковкаНаземная, Многоуровневая
Стильные фасады, разработанные по индивидуальному проекту, большая торговая галерея, детский садик, школа, фитнес-клуб на территории ЖК. Удобные планировки квартир с панорамным остеклением.
Подробнее о ЖКОсобенности проекта
С заботой о детях и взрослых
Торгово-спортивный центр
Коммерческие помещения
Мой дом – моя крепость
Места хватит всем
Двор, каким он должен быть
Экологичность, безопасность и престиж
Многоуровневый паркинг
Зарядные станции для электромобилей
Детали
Гармония в пространствеРасположение
Краснодар, улица имени Генерала Брусилова, 5лит1.3На территории ЖК:
- Детский сад
- Школа
Ипотека
Стоимость квартиры
7 176 194 ₽
Первоначальный взнос
20%
Срок
Семейная ипотека 6%Для семей с ребёнком, не достигшим 7 лет, либо с ребёнком инвалидом до 18 лет
От застройщикаФлагман
34 377 ₽/мес6%
Семейная ипотека 6%Льготная ипотека для семей с детьми
34 377 ₽/мес6%
Базовая программаБез требований к семейному положению и наличию детей
139 546 ₽/мес29,2%
Другие способы покупки
- 13домов строится
в 13 ЖК - 21дом сдан
в 21 ЖК
Отправляя заявку, вы даёте своё согласие на обработку персональных данных



