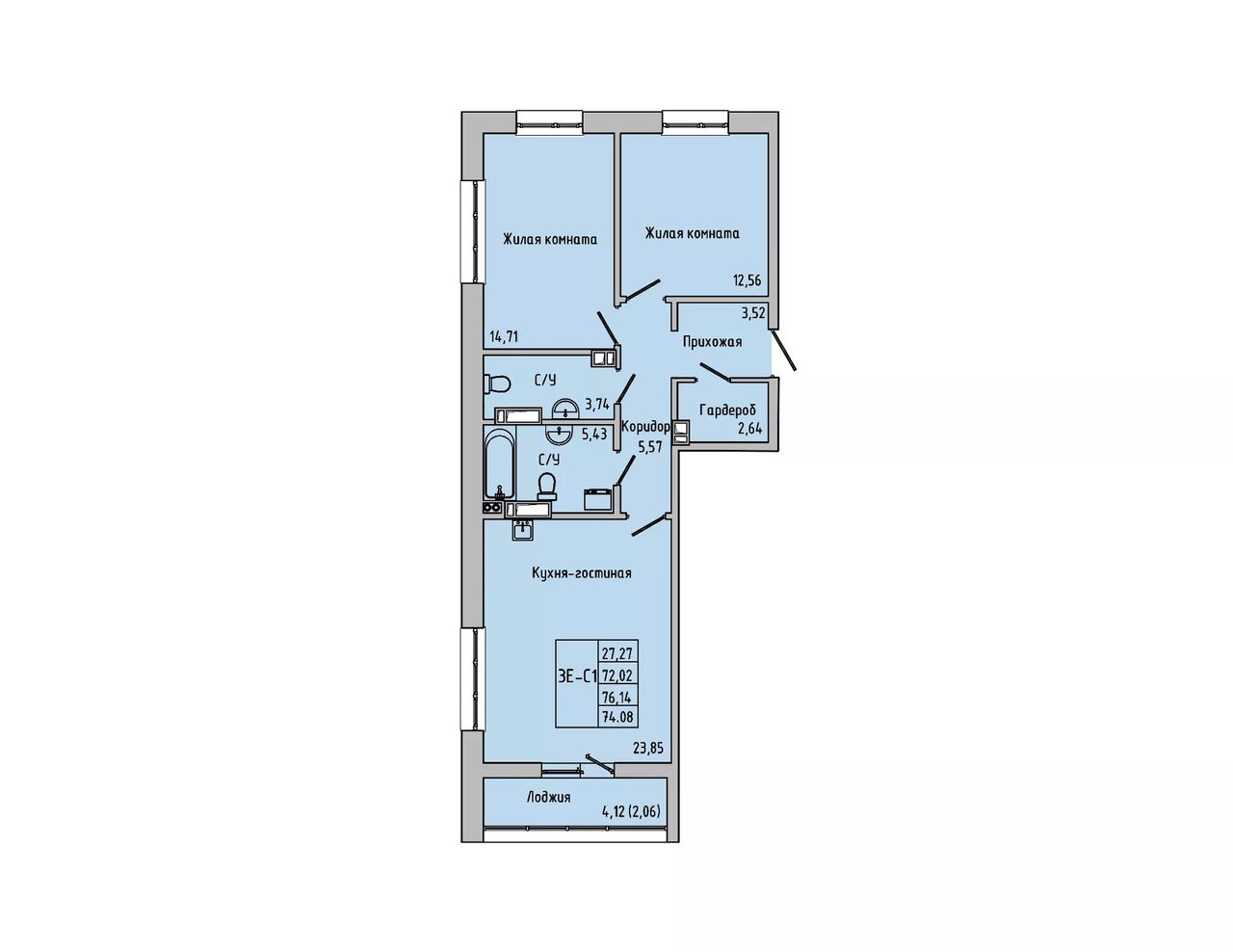
3-комнатная — 74,08 м² 3/23 эт. в Лýна
О квартире
Комнат3
Общая площадь74,08 м²
Жилая площадь51,12 м²
Кухня23,85 м²
Этаж3 из 23
Номер квартиры№22
ОтделкаПредчистовая
Санузел1 раздел.
Продаётся квартира в ЖК «Луна» от ЗAСТРОЙЩИКA. ЖК Луна - это двухсекционный дом (15-ти и 22-этажный), на 302 квартиры, строящийся по адресу ул. Луначарского 180А. Будет находиться в 10 минутах ходьбы от парка им. Ленина и сквера «Авиаторов».
Дом бизнес-класса
Закрытая территория
Предчистовая отделка
Эргономичная планировка
Просторная застекленная лоджия
Собственная управляющая компания
Стильная входная группа и скоростные лифты
Трехуровневая наземная автостоянка с эксплуатируемой кровлей
Можно заказать ремонт от застройщика, 5 стилей на выбор.
Вы можете приобрести квартиру:
В рассрочку
Без первоначального взноса
Включить с стоимость квартиры дизайнерский ремонт и меблировку от магазина Hoff
Сейчас — самый широкий выбор всех планировок по самым низким ценам от застройщика. Без комиссий и переплат, но с бесплатным и полным сопровождением сделки.
Динамика цены
Изменялась от 7 747 360 до 8 668 624 ₽За последние 6 месяцев цена повысилась на 417 686 ₽
О доме
- Срок сдачи4 кв. 2026 г.
- Количество этажей23
- КлассБизнес
- Тип домаМонолит-кирпич
Доступные варианты отделки
ПредчистоваяАкции и скидки в ЖК «Лýна»
Рассрочка для будущих мам
До конца 1 деньВыиграй автомобиль
Скидка 2% за наличку
До конца 1 деньПаркинг в подарок
До конца 1 деньКвартиры с ремонтом
До конца 1 деньОтправляя заявку, вы даёте своё согласие на обработку персональных данных
О проекте ЖК «Лýна»

- Застройщик
- Кол-во корпусов1 корпус
- Сроки сдачи2026
- КлассБизнес
- Тип домаМонолит-кирпич
- ПарковкаМногоуровневая
ЖК «Луна» отличает нестандартный, футуристичный дизайн, напоминающий космические корабли. Закрытый двор, 3-х уровневая парковка, детские и спортивные площадки во дворе ЖК.
Подробнее о ЖКОсобенности проекта
Архитектура и дизайн
Расположение и транспортная доступность
Трёхуровневый паркинг
Пространство для жизни
Закрытая территория, видеонаблюдение
Экологичность и энергетическая эффективностьРасположение
Батайск, улица Луначарского, 180АИпотека
Стоимость квартиры
8 668 624 ₽
Первоначальный взнос
20%
Срок
Семейная ипотека 6%Льготная ипотека для семей с детьми
41 526 ₽/мес6%
Базовая программаБез требований к семейному положению и наличию детей
168 568 ₽/мес29,2%
Другие способы покупки
- 6домов строится
в 6 ЖК - 35домов сдано
в 35 ЖК
Отправляя заявку, вы даёте своё согласие на обработку персональных данных
Другие ЖК застройщика Анастасия
Смотреть все ЖК застройщика| Студия | 30 - 32 м² | все проданы |
| 1-комн. | 39 - 41 м² | все проданы |
| 2-комн. | 43 - 59 м² | все проданы |
| 3-комн. | 60 - 80 м² | все проданы |
Удобная локация, современные вентилируемые фасады, 2 детских сада на территории, комплексное озеленение - все это ЖК «Северная Звезда» в Бат...






















