3-комнатная — 62 м² 8/18 эт. в Придонье
О квартире
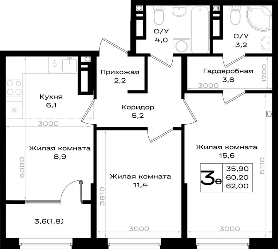
Комнат3
Общая площадь62 м²
Жилая площадь35,9 м²
Кухня6,1 м²
Этаж8 из 18
ОтделкаЧистовая
Литер 3.2, 8 этаж, № 323. Микрорайон «Придонье» - прекрасная возможность жить в спокойном, зеленом и комфортном месте, всего в 7 минутах езды от Ростова-на-Дону. Небольшой и уютный Аксай создан именно для того, чтобы остановиться, провести время с семьей и отдохнуть от столичного ритма, при этом все возможности мегаполиса остаются под рукой. Квартира находится в современном микрорайоне с развитой инфраструктурой. Идеальный вариант для тех, кто ищет гармонию между тишиной, пространством для жизни и близостью к большому городу. Звоните для всех деталей и просмотра.
Вся необходимая инфраструктура в пешей доступности
Продуманное содержание
Просторные дворы
Безбарьерная среда
Все для детей всех возрастов
Школа на 1 810 мест
Два детских сада, общая вместимость 770 мест
Две Поликлиники
Пожарное депо на 6 машин
Опорный пункт полиции
Станция скорой помощи на 2 бригады
Бульвар
Летний кинотеатр
Зона для настольных игр
Тропа здоровья
Вело-беговая дорожка
Воркаут зоны для взрослых и детей
Зоны отдыха и релакса
Тихие зоны с качелями и навесами
Площадки для выгула собак + лапомойки
Подземный и наземный паркинг
Зарядные станции для электромобилей
Видеонаблюдение
Умная система контроля посетителей
Современные умные домофоны
Приобрести квартиру можно одним из способов:
-субсидированная семейная ипотека от 3,5 % на весь
срок
-рассрочка
-оплата наличными
-дистанционная покупка
Позвоните сейчас и забронируйте квартиру со
скидкой!
О доме
- КорпусКорпус 3.2
- Срок сдачи2 кв. 2028 г.
- Количество этажей18
- КлассКомфорт
- Тип домаМонолит
Доступные варианты отделки
Без отделкиОтправляя заявку, вы даёте своё согласие на обработку персональных данных
О проекте ЖК «Придонье»

- Застройщик
- Кол-во корпусов3 корпуса
- Сроки сдачи2028
- ПарковкаНаземная, Многоуровневая, Подземная
Микрорайон со школой, детскими садами и всей инфраструктурой всего в паре минут от торгового центра и парка МЕГА.
Подробнее о ЖКОсобенности проекта
Удобное расположение
Больше, чем прогулки
Комфортный паркинг
Просторные кладовые
Комфорт и безопасность
Квартиры, наполненные светомРасположение
Аксай, Аксайский проспектНа территории ЖК:
- Детский сад
- Школа
- Поликлиника
Ипотека
Стоимость квартиры
8 060 000 ₽
Первоначальный взнос
20%
Срок
Семейная ипотека 6%Льготная ипотека для семей с детьми
38 611 ₽/мес6%
Базовая программаБез требований к семейному положению и наличию детей
156 733 ₽/мес29,2%
Другие способы покупки
- 241дом строится
в 241 ЖК - 160домов сдано
в 160 ЖК
Отправляя заявку, вы даёте своё согласие на обработку персональных данных
Другие ЖК застройщика ССК
Смотреть все ЖК застройщика- Сдача: 4 кв. 2026 г.
| Студия | 19 - 23 м² | 3,5 - 4,4 млн ₽ |
| 1-комн. | 32 - 42 м² | 7,3 - 12,1 млн ₽ |
| 2-комн. | 42 - 67 м² | 7,7 - 18,6 млн ₽ |
| 3-комн. | 62 - 86 м² | 10,8 - 24 млн ₽ |
В ипотеку от 14 688 ₽/мес
Новый район с собственной школой, тремя детскими садами, храмом, домом культуры и спортивно-оздоровительным комплексом.


















