2-комнатная — 66,35 м² 16/16 эт. в Сегодня
О квартире
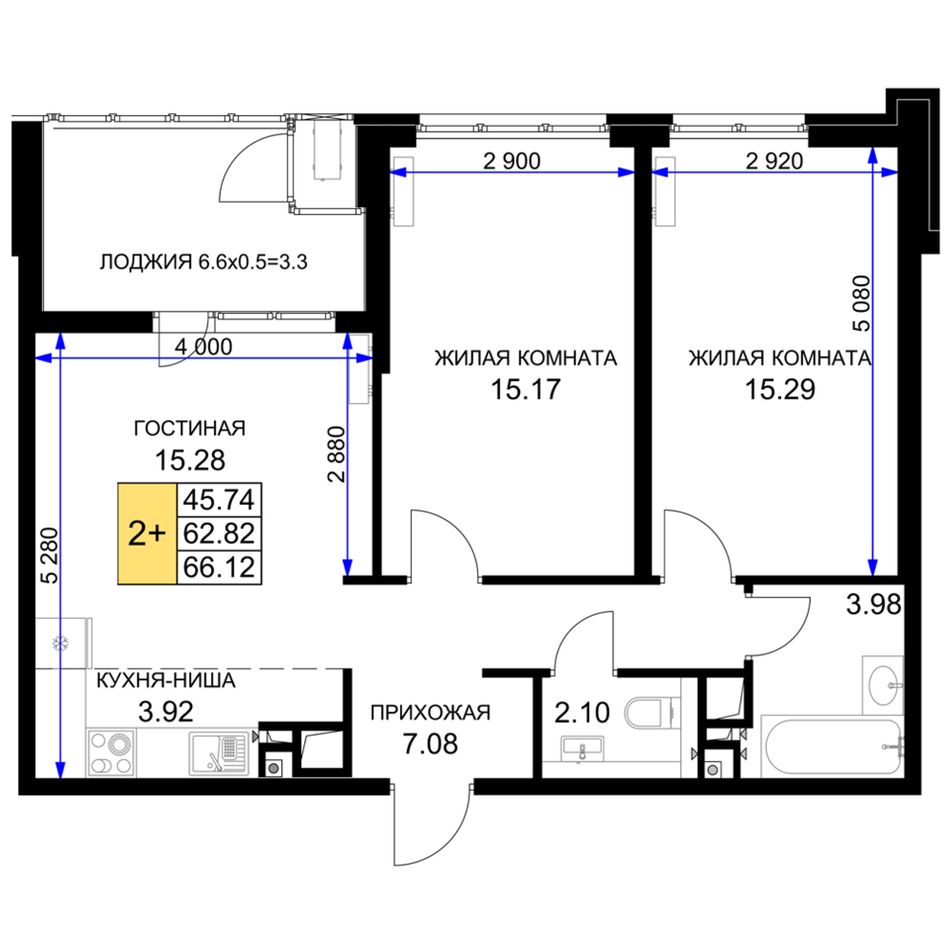
Комнат2
Общая площадь66,35 м²
Кухня19,2 м²
Этаж16 из 16
Номер квартиры№263
ОтделкаПредчистовая
Двухкомнатная квартира в жилом комплексе «Сегодня» — это продуманное сочетание уюта, функциональности и современной планировки. Уютная гостиная зона создает атмосферу тепла и комфорта, а две изолированные жилые комнаты позволяют гибко организовать пространство: обустроить спальню и детскую, кабинет или гостевую. Кухня выполнена в формате удобной ниши, что обеспечивает компактность и практичность без ущерба для функциональности. Просторная прихожая легко вмещает систему хранения, а светлая лоджия с остеклением станет отличным дополнением интерьера — ее можно использовать как зону отдыха, оранжерею или полезное подсобное помещение.
Динамика цены
Изменялась от 8 161 050 до 10 300 837 ₽В этом месяце цена повысилась на 2 139 787 ₽
О доме
- КорпусЛитер 4
- Срок сдачиСдан в 1 кв. 2025 г.
- Количество этажей16
- КлассКомфорт
- Тип домаМонолит-кирпич
Доступные варианты отделки
С отделкой
ПредчистоваяОтправляя заявку, вы даёте своё согласие на обработку персональных данных
О проекте ЖК «Сегодня»

- Застройщик
- Кол-во корпусов5 корпусов
- Сроки сдачи2025
- КлассКомфорт
- Тип домаМонолит-кирпич
- ПарковкаНаземная, Подземная
Единая архитектура фасадов, благоустроенная территория с собственным прогулочным сквером, детский садик и большая торговая галерея на территории комплекса.
Подробнее о ЖКОсобенности проекта
Детский сад
Лаунж зона
Правило жизни в ЖК «Сегодня»
Детские и спортивные площадки
Зеленая зона
Зоны отдыха
Безбарьерная среда
Наземный и подземный паркинг
Входные группыРасположение
Краснодар, улица Ветеранов, 85 лит 4На территории ЖК:
- Детский сад
Ипотека
Стоимость квартиры
10 300 837 ₽
Первоначальный взнос
20%
Срок
Семейная ипотека 6%Льготная ипотека для семей с детьми
49 345 ₽/мес6%
Базовая программаБез требований к семейному положению и наличию детей
200 307 ₽/мес29,2%
Другие способы покупки
- 233дома строится
в 233 ЖК - 154дома сдано
в 154 ЖК
Отправляя заявку, вы даёте своё согласие на обработку персональных данных
Другие ЖК застройщика ССК
Смотреть все ЖК застройщика- Сдача: 4 кв. 2026 г.
- Есть сданные
| 1-комн. | 43 - 69 м² | 11,7 - 18,6 млн ₽ |
| 2-комн. | 56 - 86 м² | 12,8 - 22,1 млн ₽ |
| 3-комн. | 79 - 106 м² | 16,6 - 23,1 млн ₽ |
В ипотеку от 49 156 ₽/мес
Стильные двухцветные фасады, развитая инфраструктура, 2 детских садика и школа на территории комплекса. Квартиры с собственными террасами и ...
- Сдача: 4 кв. 2025 г.
- Есть сданные
| 1-комн. | 38 - 58 м² | 6,3 - 9,9 млн ₽ |
| 2-комн. | 56 - 74 м² | 9 - 12 млн ₽ |
| 3-комн. | 71 - 105 м² | 10,9 - 15,1 млн ₽ |
| 4+ комн. | 115 - 130 м² | 17 - 19,3 млн ₽ |
В ипотеку от 26 353 ₽/мес
Единая архитектура фасадов, благоустроенная территория с собственным прогулочным сквером, детский садик и большая торговая галерея на террит...
- Сдача: 4 кв. 2025 г.
- Есть сданные
| Студия | 20 - 27 м² | цена по телефону |
| 1-комн. | 36 - 50 м² | 7,5 - 9,9 млн ₽ |
| 2-комн. | 63 - 72 м² | 10,5 - 14,9 млн ₽ |
| 3-комн. | 82 - 85 м² | цена по телефону |
В ипотеку от 31 362 ₽/мес
Жилой комплекс с удобной локацией и развитой инфраструктурой - два детских садика, школа, большой торговый кластер, парковки для автомобилей...
- Сдача: 4 кв. 2025 г.
- Есть сданные
| Студия | 20 - 29 м² | цена по телефону |
| 1-комн. | 31 - 41 м² | цена по телефону |
| 2-комн. | 46 - 65 м² | цена по телефону |
| 3-комн. | 75 м² | цена по телефону |
Единый европейский стиль, закрытая благоустроенная территория, удобная локация в районе с развитой инфраструктурой - все это ЖК «Свобода».
- Сдан: 4 кв. 2023 г.
| Студия | 29 - 30 м² | 12,6 - 12,7 млн ₽ |
| 1-комн. | 52 м² | 21,7 млн ₽ |
| 2-комн. | 66 - 84 м² | 27,3 - 34,8 млн ₽ |
| 3-комн. | 80 - 133 м² | цена по телефону |
| 4+ комн. | 115 м² | 47,3 млн ₽ |
В ипотеку от 52 886 ₽/мес
Премиум-класс с развитой внутренней инфраструктурой. Собственный ресторан с террасой, фитнес-клуб с бассейном, двухуровневый паркинг для авт...















