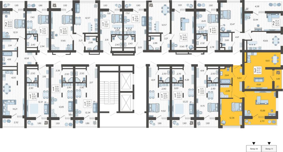
3-комнатная — 65,92 м² 6/19 эт. в Кислород
О квартире
Продается 3-комнатная квартира в новостройке ЖК "Кислород" Литер 11. Общая площадь квартиры - 65.92 кв. м., этаж 6 из 19. Преимущества квартиры: кухня-гостиная, кухня с балконом Без отделки, но с возможностью заказать отделку.
ЖК “Кислород” - это комплексная застройка из 15 домов бизнес-класса. ЖК находится на северном склоне горы Быхта, откуда открывается великолепный вид на море и горы. Рядом расположен заповедник, где берут начало туристические тропы на самые красивые водопады региона. При этом он строится в районе с развитой инфраструктурой, где есть магазины, школы, общественный транспорт, поликлиники.
- • 7 минут на машине до центра Сочи
- • 10 минут до моря
- • 5 минут пешком до Гимназии №16 и 10 до двух детских садов
- • 5 минут до магазинов + магазины откроются на первых этажах
- • 14 минут на машине до авто и ЖД-вокзалов, 30 минут до аэропорта
- • 14 минут на машине до Бальнеологического курорта Мацеста.
- • Проект предполагает строительство собственной школы и детского сада.
- • Способы оплаты: рассрочка, стандартная ипотека, военная ипотека, сниженный первоначальный взнос, материнский капитал
О доме
- КорпусЛитер 11
- Срок сдачиСдан в 2 кв. 2024 г.
- Количество этажей19
- КлассБизнес
- Тип домаМонолит
Доступные варианты отделки
С отделкой
Предчистовая
Без отделкиО проекте ЖК «Кислород»

- Застройщик
- Кол-во корпусов15 корпусов
- Сроки сдачи2025
- КлассБизнес
- Тип домаМонолит
- ПарковкаНаземная, Многоуровневая, Подземная
Особенности проекта
Семейный формат
Школа, детский сад, поликлиника
Единая комфортная среда
Гармония с природой
Парк у дома
В окружении прекрасных мест для отдыха
Неповторимый вид из окон на горы и море
Наземные и подземные парковки
Шаговая доступность
Площадка для выгула собак
Станция зарядки электромобилей
Двор без машин
БезопасностьРасположение
Сочи, Ясногорская улица, 16/2к5- Детский сад
- Школа
- Поликлиника
Ипотека
- 23дома строится
в 23 ЖК - 210домов сдано
в 210 ЖК
Другие ЖК застройщика AVA Group
Смотреть все ЖК застройщика- Сдача: 1 кв. 2026 г.
- Есть сданные
| 1-комн. | 40 - 58 м² | 7,2 - 7,9 млн ₽ |
| 2-комн. | 60 - 450 м² | 8 - 59,9 млн ₽ |
| 3-комн. | 92 - 111 м² | 12,6 - 16,4 млн ₽ |
Яркие фасады с благоустроенной территорией, детские и спортивные площадки на стилобате, трехуровневый подземный паркинг и апарт-отель на тер...
- Сдача: 1 кв. 2026 г.
- Есть сданные
| 1-комн. | 42 м² | 7,5 млн ₽ |
| 2-комн. | 60 - 68 м² | 8,4 - 9,6 млн ₽ |
| 3-комн. | 80 - 85 м² | 11 - 11,6 млн ₽ |
Фасады благородных оттенков, европейский стиль в дизайне, три паркинга, детский садик во дворе, удобная локация неподалеку от центра Краснод...
| 2-комн. | 72 м² | 14,5 млн ₽ |
- Сдан: 1 кв. 2025 г.
| Студия | 23 - 28 м² | цена по телефону |
| 1-комн. | 37 - 47 м² | 6,9 - 8,2 млн ₽ |
| 2-комн. | 61 м² | 8,5 - 8,7 млн ₽ |
| 3-комн. | 78 - 79 м² | 9,5 - 10,3 млн ₽ |
Стильный фасад, большой наземно-подземный паркинг, детский сад и фитнес центр на территории ЖК. Детские и спортивные площадки на стилобате, ...
- Сдан: 4 кв. 2024 г.
| 2-комн. | 52 - 67 м² | 6,3 - 8,2 млн ₽ |
| 1-комн. | 44 - 51 м² | 6,3 - 6,4 млн ₽ |
| 3-комн. | 86 - 111 м² | 10 - 13,2 млн ₽ |
Квартиры комфорт-класса в экологически чистом районе Краснодара! Стильные фасады, школа, детский садик и многоуровневый паркинг во дворе.

























