Студия — 29,9 м² 12/14 эт. в LETTO (Летто)
О квартире
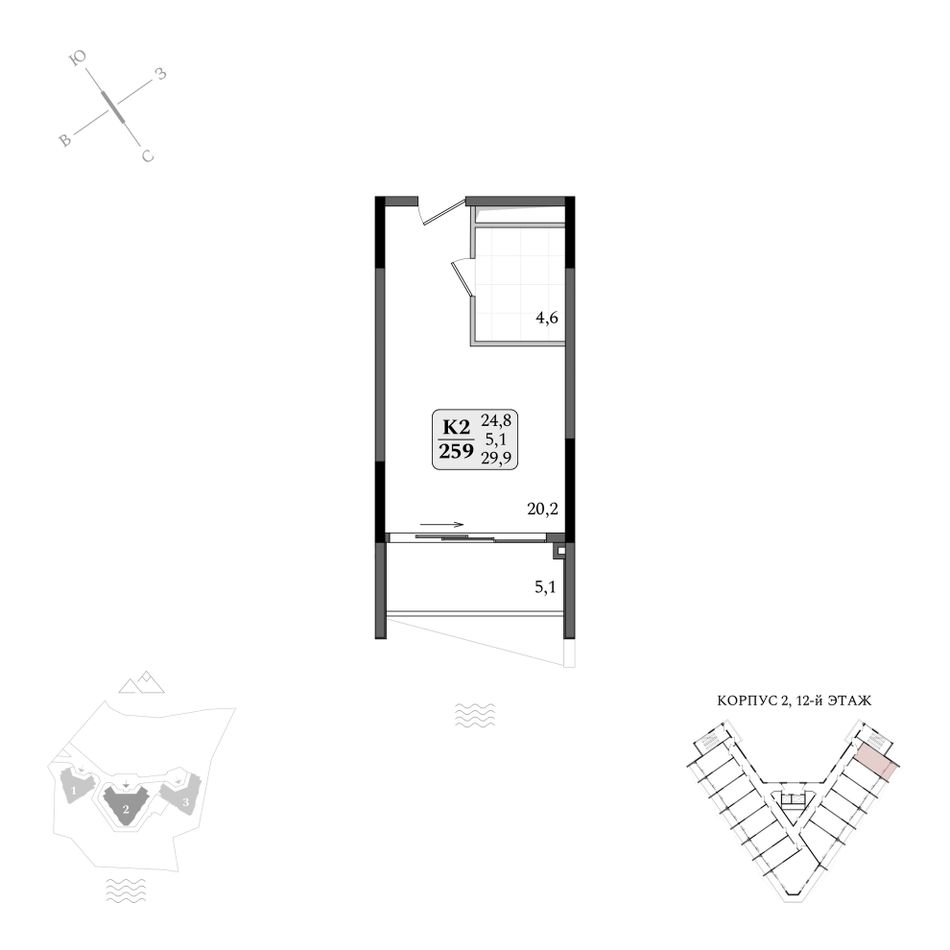
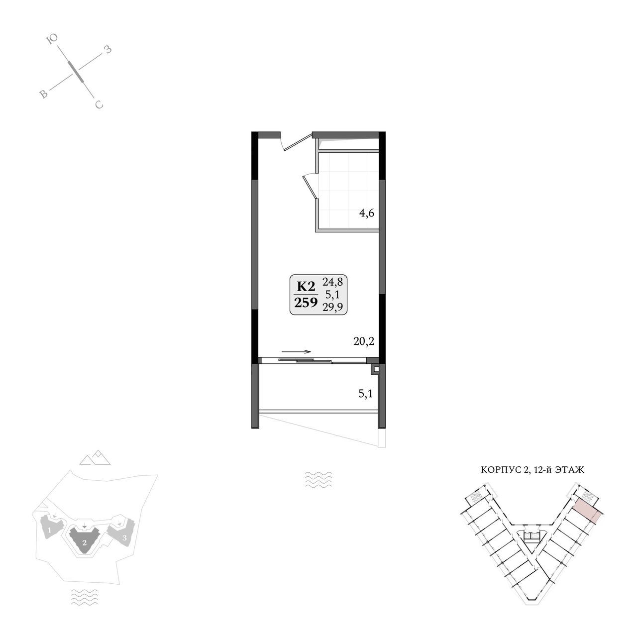
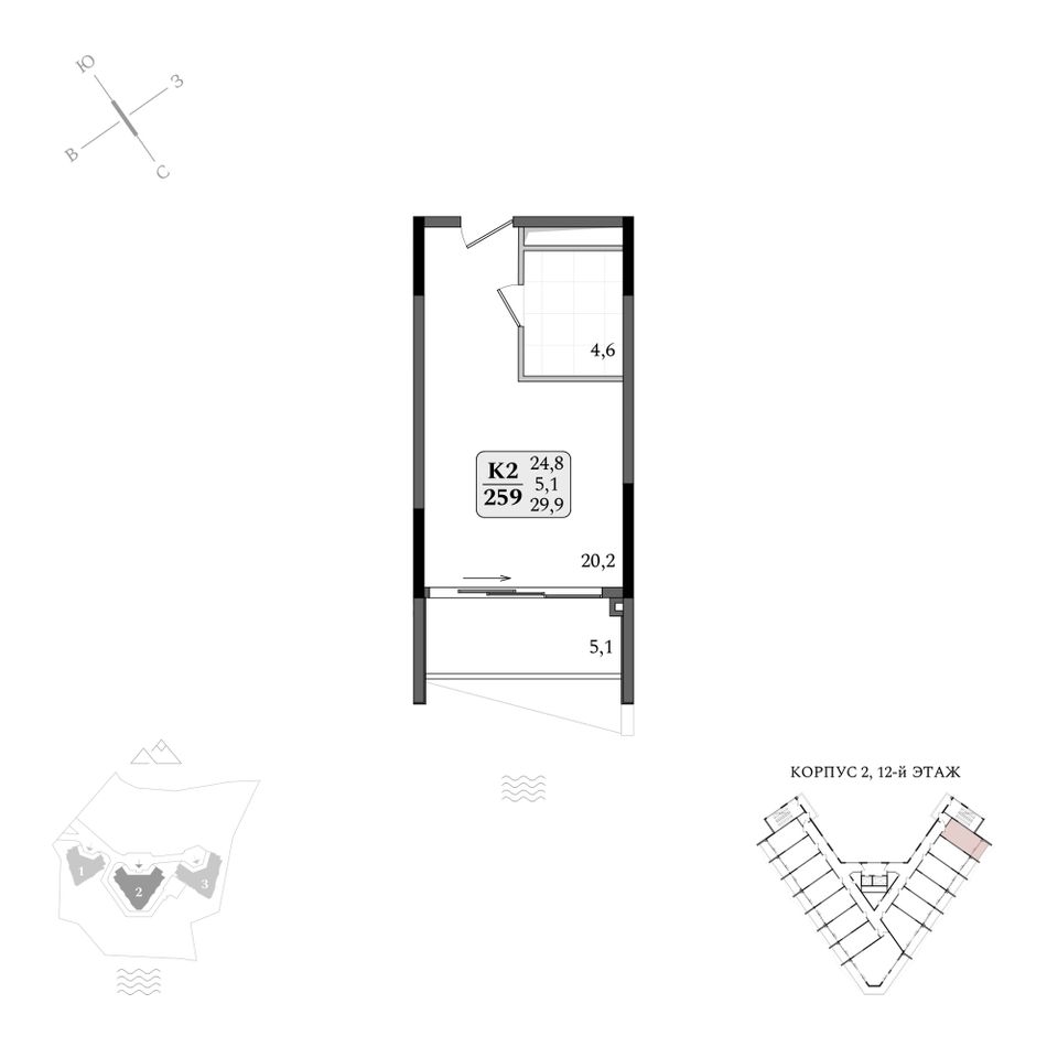
Продаются апартаменты № 2/259 площадью 29,9 м2
Описание:
Три башни - Июнь, Июль и Август на 413 апартаментов открывают перед вами захватывающие панорамы южного побережья, живописной набережной и окрестностей уютного поселка Утес (Большая Алушта). Каждый апартаменты с открытой террасой создаст атмосферу спокойствия и наслаждения пейзажами природы.
Комплекс апартаментов LETТO предлагает разнообразные возможности для отдыха в окружении морского простора, собственной и курортной инфраструктуры. Здесь вы сможете наслаждаться всеми прелестями активного и спокойного отдыха.
Инфраструктура комплекса:
Два открытых бассейна: взрослый и детский с зоной для отдыха;
Спа-центр с бассейном 500 м2;
Авторский ресторан;
Бизнес- зал для переговоров;
Детская игровая комната и детская площадка;
Спортивная площадка;
Панорамные террасы общего пользования на 14 этажах
Благоустроенная парковая зона с беседками и территория природного ландшафта;
Зона ресепшен;
Благоустроенные холлы в каждой башне;
Архитектурная подсветка каждой башни;
Бесшумные лифты.
Расположение:
На берегу Черного моря в 135 метрах, в курортном поселке Утес, по соседству с дворцом княгини Гагариной, находится комплекс апартаментов LETТO.
Всего в нескольких минутах с одной стороны от комплекса расположена камерная набережная, приглашающая на живописные прогулки вдоль берега Черного моря. С другой стороны – нетронутые дикие пляжи, для уединённого общения с природой.
Инфраструктура около проекта:
Пляж -135 м 5 мин (пешком);
Набережная с ресторанами и кафе -135 м 5 мин (пешком);
Кучук-Ламбатский каменный хаос -100 м 3 мин (пешком);
Замок княгини Гагариной - 750м 12 мин (пешком);
Парк усадьбы П.И. Кеппена -14 мин 1 км (пешком);
Мыс Плака -15 мин 1,5 км (пешком);
Парк Айвазовского- 5 мин 10 км (на машине);
Планировочные решения:
Количество апартаментов: 413
Площадь апартаментов: от 29,7 до 212,4 м2
В комплексе представлена широкая линейка планировочных решений от студий до двухуровневых пентхаусов на последних этажах.
Комплекс обладает 100% видовыми характеристиками, а панорамные раздвижные окна позволяют любоваться пейзажами, не вставая с кровати.
Собственная сервисная компания:
Качественный сервис и безопасность жильцов — ведущие принципы нашей собственной сервисной компании «Система безопасности апарт-комплекса» — это видеонаблюдение 24/7, индивидуальные электронные ключи у каждого жильца, круглосуточная система контроля. Также мы предоставляем уникальный сервис под любой из ваших запросов: трансфер из аэропорта до комплекса апартаментов, подготовка апартаментов к вашему приезду, аниматоры на детский праздник, клининг-сервис, экскурсии и трансфер по Крыму.
Характеристики:
Срок сдачи - 4-й квартал 2027 г.
Класс жилья - Премиум
Тип жилья - апартаменты
Этажность – 16 (надземных 13-15)
Варианты отделки - черновая
Количество корпусов-3
Тип дома - монолитный ж/б каркас с заполнением из газобетона
Охрана - Да
О доме
- КорпусКорпус 1
- Срок сдачи4 кв. 2027 г.
- Количество этажей14
Доступные варианты отделки
Без отделкиО проекте ЖК «LETTO (Летто)»

- Застройщик
- Кол-во корпусов3 корпуса
- Сроки сдачи2027
- КлассЭлитный
- Тип домаМонолит-кирпич
- ПарковкаНаземная, Многоуровневая
Особенности проекта
Благоустроенная парковая зона
Детская площадка и игровая комната
Бассейн под открытым небом
Спа-центр
Террасы
Стильный дизайн
Тренажерный зал и спортивная площадка
Безопасность
Сервис
РесторанРасположение
посёлок Бондаренково, улица КёппенаИпотека
- 9домов строится
в 9 ЖК - 1дом сдан
в 1 ЖК
Другие ЖК застройщика Перспектива
Смотреть все ЖК застройщика- Сдан: 4 кв. 2022 г.
| 1-комн. | 38 - 82 м² | 12,3 - 21,8 млн ₽ |
| 2-комн. | 86 - 134 м² | 19,2 - 26,9 млн ₽ |
Проект бизнес-класса в экологически чистом районе Ялты. Видовые террасы, крытый бассейн, наличие коммерции на нижних этажах, парковка для ав...
| 1-комн. | 34 - 82 м² | цена по телефону |
| 2-комн. | 54 - 139 м² | цена по телефону |
| 3-комн. | 80 - 139 м² | цена по телефону |
Жилой комплекс бизнес-класса с развитой инфраструктурой - бассейн, баня, парковая зона, коммерческие объекты, зоны отдыха и активности для к...



























