1-комнатная — 45,66 м² 2/11 эт. в Паруса мечты
О квартире
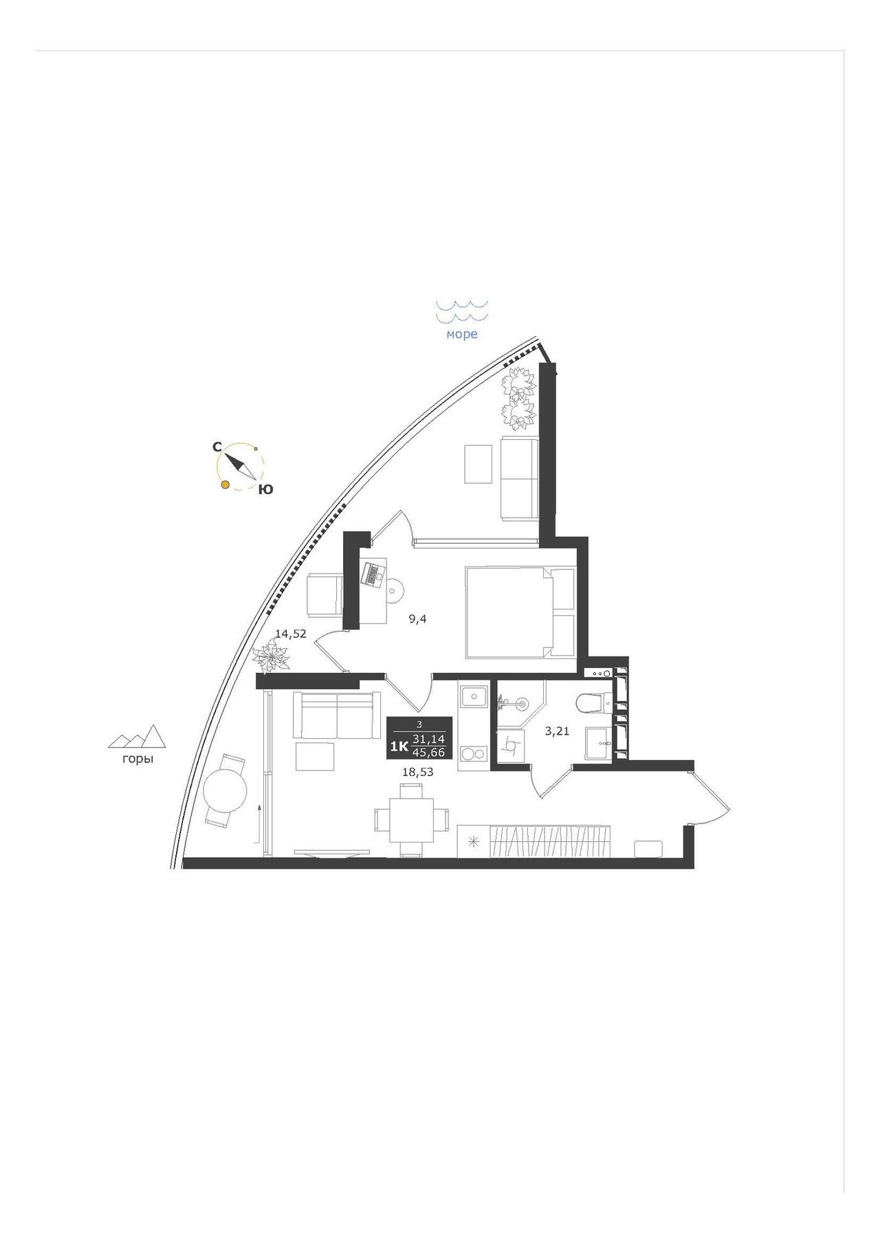
Продаются апартаменты общей площадью 45,66 м2 в премиальном гостиничном комплексе апартаментов «Паруса мечты» в историческом районе г. Алушты.
Апартаменты № 2/3
Башня 2
Видовые характеристики: горы
Этаж: 2
Высота потолков: 3м.
Варианты приобретения:
— 100% оплата;
— Беспроцентная рассрочка;
— Ипотека от ведущих банков.
Преимущества комплекса:
— 500 м от моря, современная набережная Профессорского уголка;
— Исторический район г. Алушты;
— 100% видовые характеристики из каждого апартамента на морское побережье, гору Кастель и вечнозеленый заповедник;
— Собственный пляж с курсирующим до него/обратно электрокаром.
Инфраструктура:
- Открытые бассейны и SPA
- Тренажерный зал- Детская площадка
- Комната для игр и творчества
- Летний кинотеатр
- Ресторан
- Входная группа с фонтаном
- Дизайнерское лобби с зонами для отдыха
- Келлеры
- Колясочные
- Прогулочная аллея и места для отдыха- Коммерческие помещения и подземный паркинг
SERVISE Аll inclusive от собственной сервисной компании:
трансфер до апарт-комплекса, подготовка апартаментов к вашему приезду, аниматоры на детский праздник, клининг-сервис, экскурсии и трансфер по Крыму, прокат спортивного инвентаря и яхт. Предоставление услуг под любой из ваших запросов!
Комплекс реализуется по 214-ФЗ.
Для записи на просмотр звоните в отдел продаж!
О доме
- КорпусКорпус 1
- Срок сдачи1 кв. 2027 г.
- Количество этажей11
Доступные варианты отделки
Без отделкиО проекте ЖК «Паруса мечты»

- Застройщик
- Кол-во корпусов3 корпуса
- Сроки сдачи2027
- КлассЭлитный
- Тип домаМонолит-кирпич
- ПарковкаНаземная, Подземная
Особенности проекта
Открытый бассейн
Террасы
Прогулочные аллеи с фонтаном
Расположение
Тренажерный зал
Инфраструктура
Лобби-бар и кафе
Детские развлечения
Подземный паркинг
Келлеры
Премиальный сервис
Бесшумные скоростные лифты
Продуманные планировочные решения
Панорамные окнаРасположение
село Виноградное, улица Сусловой, 3Ипотека
- 9домов строится
в 9 ЖК - 1дом сдан
в 1 ЖК
Другие ЖК застройщика Перспектива
Смотреть все ЖК застройщика| 1-комн. | 34 - 82 м² | цена по телефону |
| 2-комн. | 54 - 139 м² | цена по телефону |
| 3-комн. | 80 - 139 м² | цена по телефону |
Жилой комплекс бизнес-класса с развитой инфраструктурой - бассейн, баня, парковая зона, коммерческие объекты, зоны отдыха и активности для к...
- Сдан: 4 кв. 2022 г.
| 1-комн. | 38 - 82 м² | 12,3 - 21,8 млн ₽ |
| 2-комн. | 86 - 134 м² | 19,2 - 26,9 млн ₽ |
Проект бизнес-класса в экологически чистом районе Ялты. Видовые террасы, крытый бассейн, наличие коммерции на нижних этажах, парковка для ав...



























