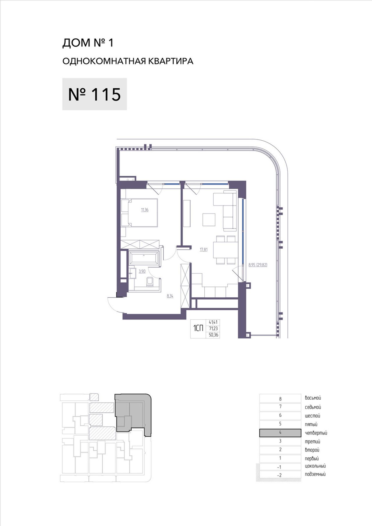
1-комнатная — 71,23 м² 4/8 эт. в Атлантида
О квартире
Застройщик комплекса Зазеркалье презентует новый проект в 260 м от Приморского парка, по адресу - Республика Крым, Ялта, ул. Коммунаров, 7а
Новый проект предусматривает три восьмиэтажных дома, бизнес-класса. Квартиры площадью от 40 до 330 кв. м, с возможностью прописки.
ЖК Атлантида будет располагаться на закрытой территории, площадью 1,2 Га.
Инфраструктура жилого комплекса будет включать в себя собственный аквапарк, ресторан, тренажерный зал, детский клуб с аниматорами, салон красоты, бутики, спортивную и детскую площадку, а также подземную парковку. Для собственников ЖК Атлантиды предусмотрена льготная клубная система на инфраструктуру лучшего элитного комплекса Зазеркалье в Приморском парке.
Большие балконы площадью от 10 до 130 кв.м. позволят Вам наслаждаться шикарными видами на море, Ялту, Ливадию и горы.
Система безопасности для жильцов осуществляется в режиме 24\7 и предусматривает видеонаблюдение, пожарную сигнализацию и охрану.
Квартиры в ЖК Атлантида, благодаря локации и инфраструктуре района, идеально подходят под следующие цели- постоянное проживание, отдых, коммерческое использование (сдача в аренду), инвестирование.
В шаговой доступности: Приморский парк (260 м), море и пляжи (700 м), центральная набережная Ялты, школу, новый детский сад, косметологическая клиника, СПА, ресторан, тренажерный зал, аквапарк, остановки общественного транспорта, магазины, банки.
Удобная транспортная развязка, которая позволит Вам легко добраться до всех популярных туристических мест Ялты.
Стоимость - от 185 000 руб/кв.м.
С уважением,
Застройщик
89787334333
О доме
- КорпусДом 1
- Срок сдачи3 кв. 2028 г.
- Количество этажей8
- КлассБизнес
- Тип домаМонолит-кирпич
Доступные варианты отделки
Без отделкиО проекте ЖК «Атлантида»

- Застройщик
- Кол-во корпусов3 корпуса
- Сроки сдачи2028
- КлассБизнес
- Тип домаМонолит-кирпич
- ПарковкаПодземная
Особенности проекта
Дом в сердце парков
Детские и спортивные площадки
Видовые квартиры
Огороженная территория
Зоны отдыхаРасположение
Ялта, улица Коммунаров, 7АИпотека
- 3дома строится
в 3 ЖК - 1дом сдан
в 1 ЖК
Другие ЖК застройщика Аква-Траст
Смотреть все ЖК застройщика| Своб. план. | 48 - 800 м² | цена по телефону |
Современный жилой комплекс в 5-ти минутах от моря! Стильный фасад в морской стилистике, панорамный инфинити-бассейн, ресторан, лобби-бар, сп...






