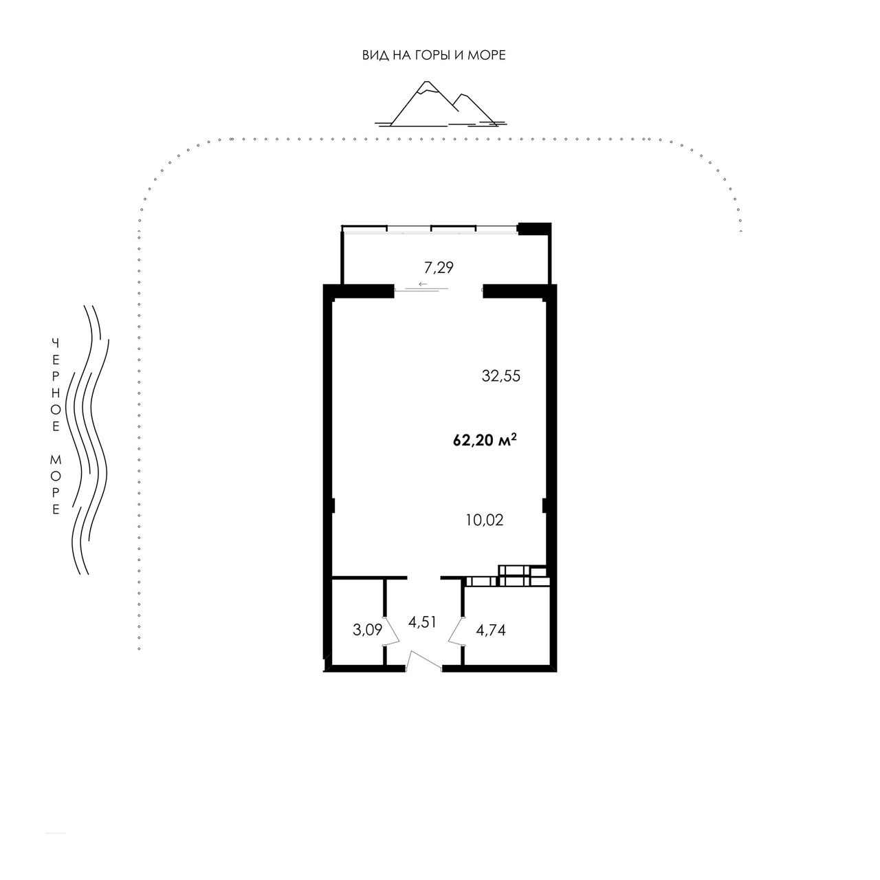
1-комнатная — 62,2 м² 10/12 эт. в Park Plaza (Парк Плаза)
О квартире
Продаются апартаменты общей площадью 62,2 м2 в премиальной южной резиденции «Park Plaza» в самом сердце Алушты.
Апартаменты N А-091
Видовые характеристики: горы
Этаж: 10
Высота потолков: 3м.
Преимущества комплекса:
— 150 м от моря, современная набережная Алушты;
— В центре Приморского парка;
— 150 метров до многофункционального спортивного комплекса;
— Формат клубного дома;
— Панорамные виды на побережье, горы и вечнозеленый парк.
Инфраструктура:
— Лобби с зоной ресепшн;
— Ресторан, детская игровая, тренажерный зал;
— Эксклюзивная видовая терраса более 1000 м2 с лаундж-зонами;
— Джакузи, беседки-иглу, зоны отдыха с камином, летний кинотеатр, оны для занятий йогой, SPA, бар;
— Подземный паркинг и келлеры.
Варианты приобретения:
— 100% оплата;
— Беспроцентная рассрочка;
— Ипотека от ведущих банков;
SERVISE Аll inclusive от собственной сервисной компании: трансфер до резиденции, подготовка апартаментов к вашему приезду, и сдача в аренду, аниматоры на детский праздник, клининг-сервис, экскурсии и трансфер по Крыму, прокат спортивного инвентаря и яхт. Предоставление услуг под любой из ваших запросов!
Комплекс реализуется по 214-ФЗ. Для записи на просмотр звоните в отдел продаж!
О доме
- Срок сдачи4 кв. 2025 г.
- Количество этажей12
Доступные варианты отделки
Без отделкиО проекте ЖК «Park Plaza (Парк Плаза)»

- Застройщик
- Кол-во корпусов1 корпус
- Сроки сдачи2025
- КлассБизнес
- Тип домаМонолит-кирпич
- ПарковкаНаземная, Подземная
Особенности проекта
Пляж
Парк
Спорт
Видовая терраса
Тренажерный зал
Детская комната
SPA-центр
Ресторан
Парковка
Консьерж-сервисРасположение
Алушта, Парковая улица, 7Ипотека
- 9домов строится
в 9 ЖК - 1дом сдан
в 1 ЖК
Другие ЖК застройщика Перспектива
Смотреть все ЖК застройщика- Сдан: 4 кв. 2022 г.
| 1-комн. | 38 - 82 м² | 12,3 - 21,8 млн ₽ |
| 2-комн. | 86 - 134 м² | 19,2 - 26,9 млн ₽ |
Проект бизнес-класса в экологически чистом районе Ялты. Видовые террасы, крытый бассейн, наличие коммерции на нижних этажах, парковка для ав...
| 1-комн. | 34 - 82 м² | цена по телефону |
| 2-комн. | 54 - 139 м² | цена по телефону |
| 3-комн. | 80 - 139 м² | цена по телефону |
Жилой комплекс бизнес-класса с развитой инфраструктурой - бассейн, баня, парковая зона, коммерческие объекты, зоны отдыха и активности для к...



























